highlight_off
Riferimento annuncio 326102 info

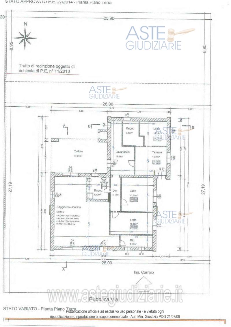
Villino loc. San Gregorio, Via Dott. Giovanni Calzavara 239, 37040 Veronella (VR)

0
€ 245.000
Vendita all'asta Senza incanto, con gara telematica sincrona mista - LOTTO UNICO: LOTTO UNICO - Veronella (VR), loc. San Gregorio, Via Dott. Giovanni Calzavara 239, piena proprietà di abitazione al piano terra con porzione di sottotetto non praticabile, tettoia e area scoperta esterna. Si precisa che dalla perizia risulta che l’attuale area scoperta di pertinenza, all’interno della proprietà, comprende oltre al mn. 1196, oggetto della presente procedura, anche il mn. 1174 non oggetto della presente procedura. Quest’ultimo mappale, a seguito della vendita del mn.1196, diverrà intercluso. Prezzo base € 245.000,00 (offerta minima € 183.750,00). Data vendita 07/05/2026 ore 14:45. Giudice Dott. Paola Salmaso. Professionista delegato alla vendita Not. Floriana Zago - Email "notes@notariato.it"; Tel. 0458006661. Custode Giudiziario Istituto Vendite Giudiziarie Vegi Srls - Email "visiteimmobili@ivgverona.it"; Tel. 0459813484. Rif. Tribunale di Verona - Espropriazione immobiliare (cartabia) n. 235/2024

Superficie mq
Vani
Bagni
Piano 0

Tipologia di vendita Giudiziaria
Modalità di vendita Sincrona mista
Termine presentazione offerte 01/01/1900 ore 00:00
Data e ora inizio gara 07/05/2026 ore 14:45
Codice ID astegiudiziarie.it 4344694
0
€ 245.000

Ti interessa questa vendita?

north_east

Clicca qui per essere indirizzato alla scheda sul sito di provenienza

Bene di astegiudiziarie.it