highlight_off
Riferimento annuncio 125216 info

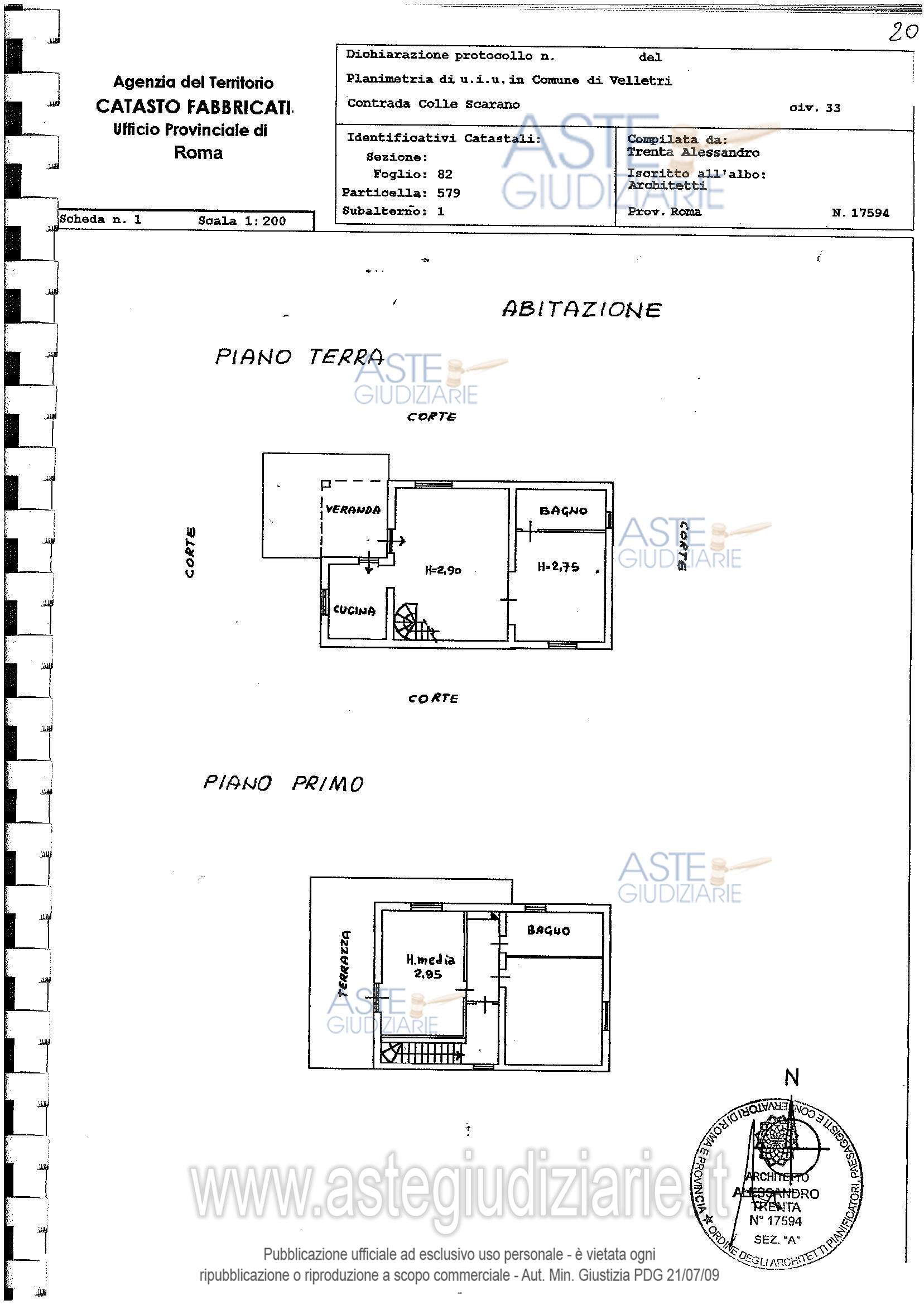
Villino via Colle Scarano n. 33, 00049 Velletri (RM)

7,50
277,40
0
€ 90.000
Vendita all'asta Senza incanto - LOTTO 1: Piena proprietà di villino unifamiliare con corte di pertinenza e terreni. Prezzo base € 90.000,00 (offerta minima € 67.500,00). Data vendita 11/12/2025 ore 11:00. Giudice Enrico Colognesi. Professionista delegato alla vendita Avv. Michela Del Monaco - Tel. 0696498956. Custode Giudiziario Avv. Michela Del Monaco - Email "avvmicheladelmonaco@gmail.com". Rif. Tribunale di Velletri - Esecuzione immobiliare post legge 80 n. 693/2010

Superficie 277,40 mq
Vani 7,50
Bagni
Piano 0

Tipologia di vendita Giudiziaria
Modalità di vendita Presso il venditore
Termine presentazione offerte 01/01/1900 ore 00:00
Data e ora inizio gara 11/12/2025 ore 11:00
Codice ID astegiudiziarie.it 4234570
7,50
277,40
0
€ 90.000

Ti interessa questa vendita?

north_east

Clicca qui per essere indirizzato alla scheda sul sito di provenienza

Bene di astegiudiziarie.it