highlight_off
Riferimento annuncio 319688 info

Villino via Colle Fiorito n. 19-21-23, 00069 Trevignano Romano (RM)

0
€ 503.000
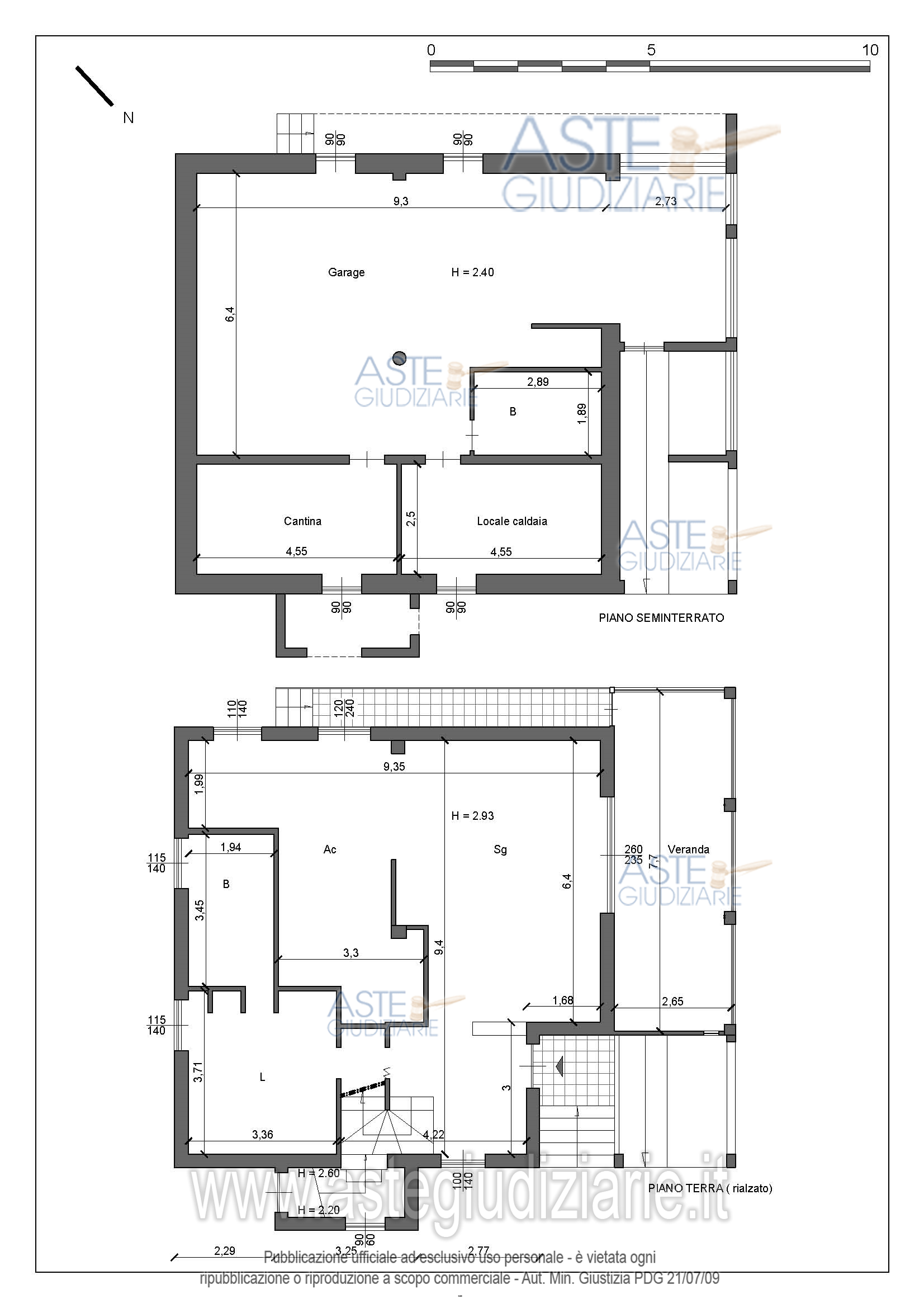
Vendita all'asta Senza incanto - LOTTO unico: villino articolato su tre livelli (S1-T-1); il piano terra è collegato con il piano primo da una scala interna, mentre il piano seminterrato ha accesso separato tramite la rampa del garage. Il piano terra è composto da: ingresso, soggiorno, cucina, camera da letto, disimpegno, bagno e balcone oggi chiuso a veranda senza titolo edilizio. Il piano primo è composto da un bagno, quattro camere da letto e un balcone. Il piano seminterrato è composto da canina e locale caldaia. Prezzo base € 503.000,00. Data vendita 27/01/2026 ore 10:00. Custode Giudiziario Avv. Antonella Tagliani - Email "antonella@studiolegaletagliani.it". Rif. Tribunale di Civitavecchia - Esecuzione immobiliare n. 82/2025

Superficie mq
Vani
Bagni
Piano 0

Tipologia di vendita Giudiziaria
Modalità di vendita Presso il venditore
Termine presentazione offerte 01/01/1900 ore 00:00
Data e ora inizio gara 27/01/2026 ore 10:00
Codice ID astegiudiziarie.it 4339725
0
€ 503.000

Ti interessa questa vendita?

north_east

Clicca qui per essere indirizzato alla scheda sul sito di provenienza

Bene di astegiudiziarie.it