highlight_off
Riferimento annuncio 322866 info

Villino Piazza Leone Orsini, 2, 02048 Stimigliano RI, Italia, 02048 Stimigliano (RI)

0
€ 190.545
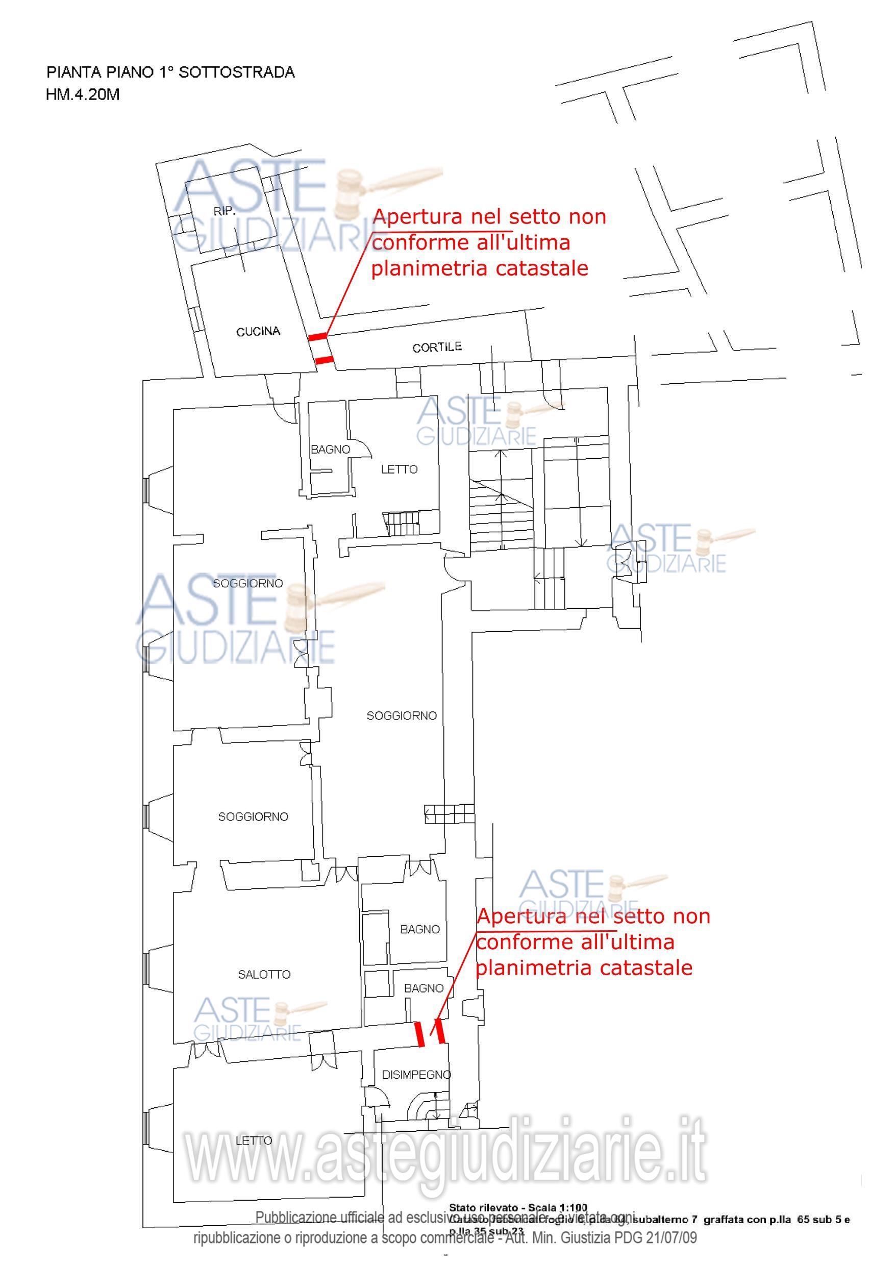
Vendita all'asta Senza incanto, con gara telematica asincrona - LOTTO UNICO: Appartamento posto al piano primo sottostrada del Palazzo Baronale di Stimigliano (Palazzo Orsini), superficie complessiva netta circa 230 mq, attualmente adibita a n. 4 locali soggiorno, cucina/sala da pranzo, 2 camere da letto, 3 bagni e un piccolo cortile interno. Il palazzo è sottoposto a tutela monumentale ai sensi delle L. 364/1909, 1089/1939 e del D.Lvo 42/2004, vincolo a carico di tutto il fabbricato, con tutte le decorazioni interne ed esterne per l'importante interesse artistico e storico. Prezzo base € 190.545,00 (offerta minima € 142.908,75). Data inizio operazioni di vendita: 25/02/2026 ore 10:00. Giudice Barbara Vicario. Professionista delegato alla vendita Avv. Cristiano Figorilli - Email "cristianofigorilli@gmail.com". Custode Giudiziario Avv. Cristiano Figorilli - Email "cristianofigorilli@gmail.com". Rif. Tribunale di Rieti - Esecuzione immobiliare post legge 80 n. 36/2024

Superficie mq
Vani
Bagni
Piano 0

Tipologia di vendita Giudiziaria
Modalità di vendita Asincrona telematica
Termine presentazione offerte 01/01/1900 ore 00:00
Data e ora inizio gara 25/02/2026 ore 10:00
Codice ID astegiudiziarie.it 4340501
0
€ 190.545

Ti interessa questa vendita?

north_east

Clicca qui per essere indirizzato alla scheda sul sito di provenienza

Bene di astegiudiziarie.it