Riferimento annuncio 312267
        
    
    Villino Via Primo Ernesto Laudi, 7, 27048 Sommo (PV)
                
                12,50
            
            
                
                324,00
            
            
                
                0
            
        
€ 336.000    
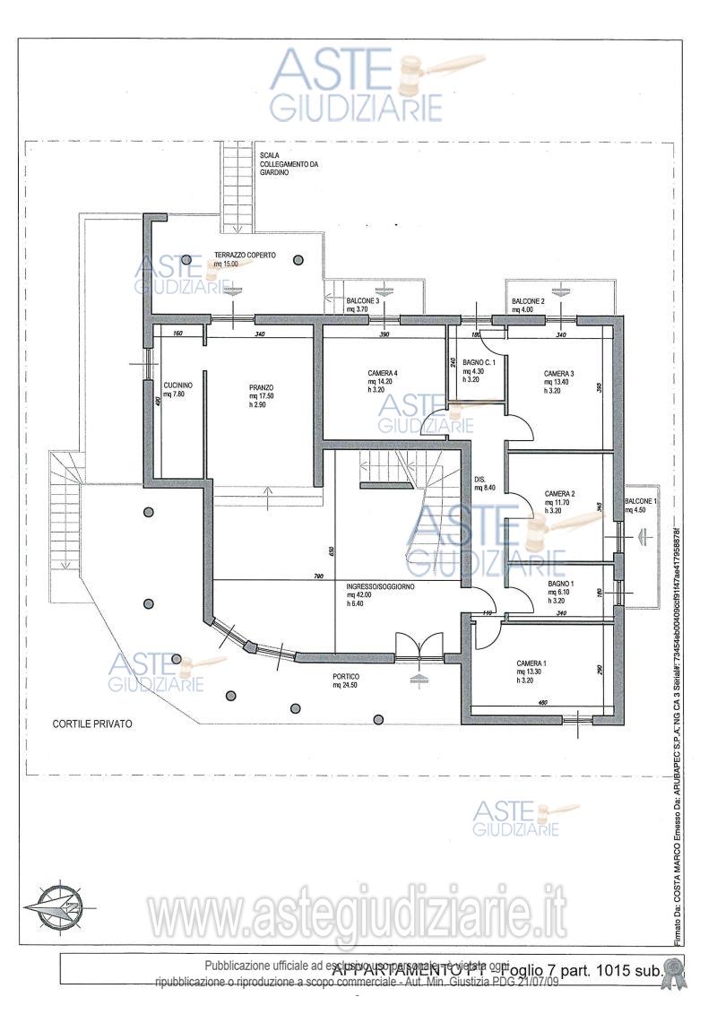
                Vendita in attesa dell'emissione del nuovo bando d'asta. LOTTO UNICO: Villa monofamiliare disposta su due piani abitativi con seminterrato destinato a cantina e box autorimessa doppia oltre ampio cortile esterno in parte pavimentato in parte destinato a verde; completano l'unità un ampio portico al PT sulla zona ingresso, due balconi al PT sulle camere da letto, un ampio terrazzo e un balconcino sulla camera da letto al 1P. Ultimo prezzo base € 336.000,00 (offerta minima € 252.000,00). Giudice Dott. Francesca Claris Appiani. Professionista delegato alla vendita Not. Marco Marchetti - Email "notai@paviaesecuzioni.it"; Tel. 038234728. Custode Giudiziario  Istituto Vendite Giudiziarie Di Pavia - Email "prenotazione.visitaimmobile@ivgpavialodi.it"; Tel. 0382539013.  Rif. Tribunale di Pavia - Espropriazione immobiliare (cartabia) n. 122/2024
            
   
| Superficie | 324,00 mq | 
|---|---|
| Vani | 12,50 | 
| Bagni | |
| Piano | 0 | 
| Tipologia di vendita | Giudiziaria | 
|---|---|
| Modalità di vendita | Asincrona telematica | 
| Termine presentazione offerte | 01/01/1900 ore 00:00 | 
| Data e ora inizio gara | 25/09/2025 ore 15:00 | 
 
                         
                         
                         
                         
                         
                         
                         
                         
                         
                         
                         
                         
                         
                         
                         
                         
                         
                         
                         
                         
                         
                         
                         
                         
                         
                         
                         
                         
                         
                         
                         
                        