highlight_off
Riferimento annuncio 322221 info

Villino c.da Fanusa, traversa Daniele Impellizzeri, 62, 96100 Siracusa (SR)

0
€ 182.250
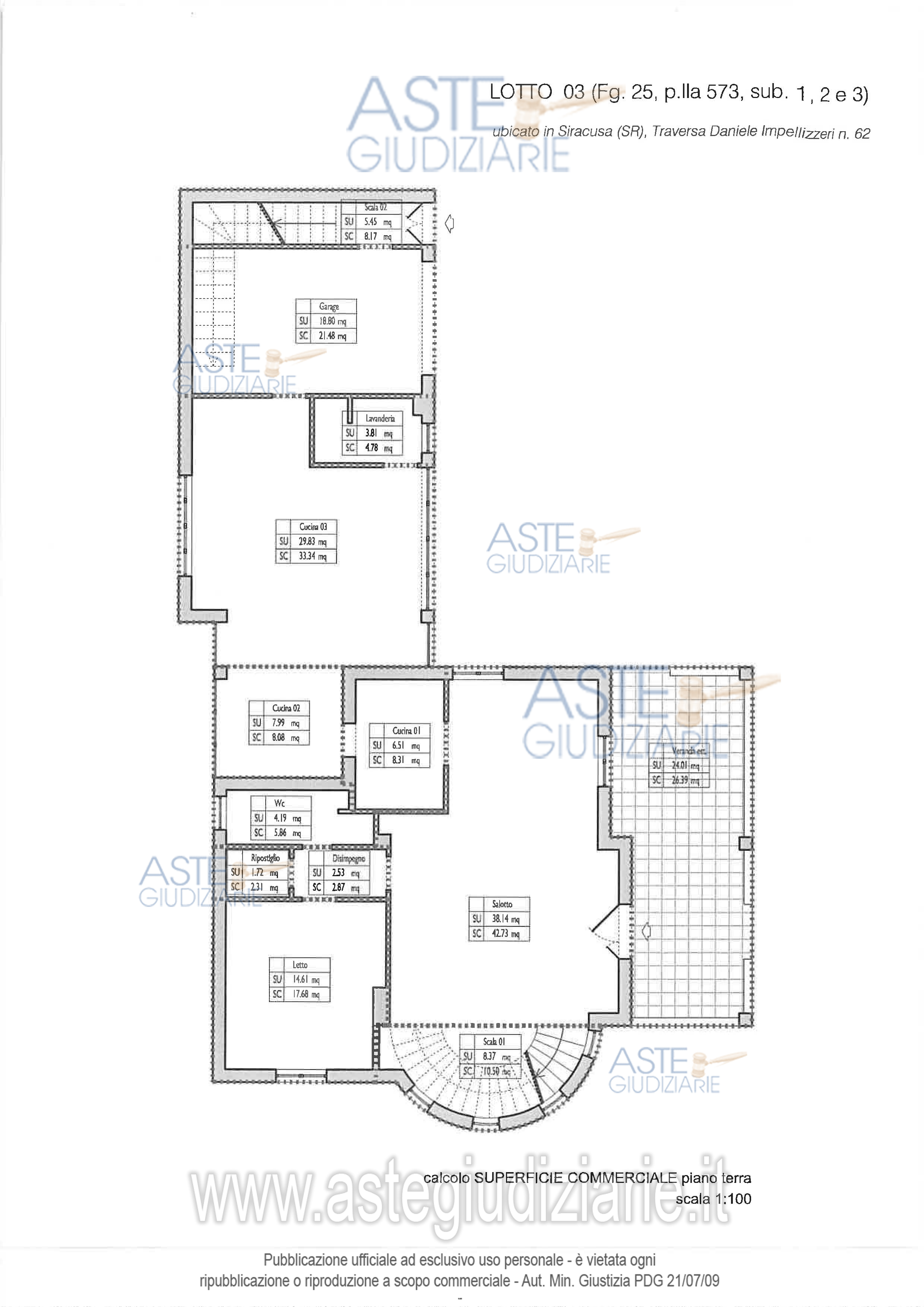
Vendita all'asta Senza incanto, con gara telematica sincrona mista - LOTTO 3: immobile sito in Siracusa, contrada Fanusa, traversa Daniele Impellizzeri, n. 62, censiti: -al foglio 125, particella 573, sub.1,_ bene comune non censibile; -al foglio 125, particella 573, sub. 2, cat. A/7, classe 3, r.c. euro 1.053,57; -al foglio125, particella 573, sub.3, cat. F/3. Prezzo base € 182.250,00 (offerta minima € 136.687,50). Data vendita 27/05/2026 ore 12:00. Professionista delegato alla vendita Avv. Maria Barsalona - Email "maria.barsalona@gmail.com"; Tel. 0931441414. Custode Giudiziario Avv. Maria Barsalona - Email "maria.barsalona@gmail.com"; Tel. 0931441414. Rif. Tribunale di Siracusa - Esecuzione immobiliare post legge 80 n. 325/2023

Superficie mq
Vani
Bagni
Piano 0

Tipologia di vendita Giudiziaria
Modalità di vendita Sincrona mista
Termine presentazione offerte 26/05/2026 ore 12:00
Data e ora inizio gara 27/05/2026 ore 12:00
Codice ID astegiudiziarie.it 4342029
0
€ 182.250

Ti interessa questa vendita?

north_east

Clicca qui per essere indirizzato alla scheda sul sito di provenienza

Bene di astegiudiziarie.it