Riferimento annuncio 300415
        
    
    Villino Contrada Cifalino-Papeo, via S. Pio da Petralcina s.n. - località Tivoli, 96100 Siracusa (SR)
                
                0
            
        
€ 87.663    
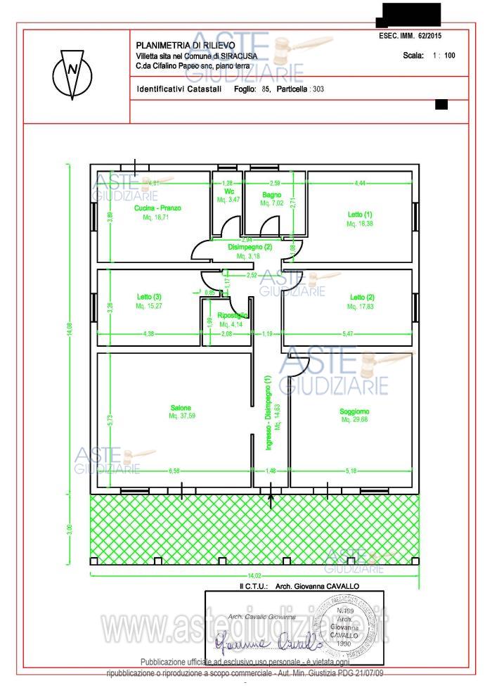
                Vendita all'asta Senza incanto, con gara telematica sincrona mista - LOTTO 2:  Piena ed intera proprietà del villino unifamiliare, con annesso terreno di pertinenza di mq. 1619, in Siracusa, Contrada Cifalino-Papeo, via S. Pio da Petralcina s.n. (località Tivoli), in N.C.E.U. al foglio 85, p.lla 303, cat. A/7, cl. 3, vani 8, superficie catastale totale mq 222-totale escluse aree scoperte mq 192, R.C. € 1.053,57, Traversa Cefalino snc piano T, superficie utile mq. 169,90, superficie commerciale mq. 250,66, Classe Energetica “F”. Prezzo base € 87.662,54 (offerta minima € 65.746,90). Data vendita 11/12/2025 ore 11:00. Giudice Dott. Maria Cristina Di Stazio. Professionista delegato alla vendita Avv. Paolo Munafò - Email "avv.paolomunafo@mbcg.it"; Cell. 3387429274; Tel. 09311562510. Custode Giudiziario Avv. Paolo Munafò - Email "avv.paolomunafo@mbcg.it"; Cell. 3387429274; Tel. 09311562510.  Rif. Tribunale di Siracusa - Esecuzione immobiliare post legge 80 n. 62/2015
            
   
| Superficie | mq | 
|---|---|
| Vani | |
| Bagni | |
| Piano | 0 | 
| Tipologia di vendita | Giudiziaria | 
|---|---|
| Modalità di vendita | Sincrona mista | 
| Termine presentazione offerte | 01/01/1900 ore 00:00 | 
| Data e ora inizio gara | 11/12/2025 ore 11:00 | 
- file_download Ordinanza
- file_download Ordinanza
- file_download Ordinanza
- file_download Ordinanza
- file_download Perizia
- file_download Perizia
- file_download Perizia
- file_download Perizia
- file_download Altro
- file_download Altro
- file_download Altro
- file_download Altro
- file_download Altro
- file_download Altro
- file_download Avviso
 
                         
                         
                         
                         
                         
                         
                         
                         
                         
                         
                         
                         
                        