highlight_off
Riferimento annuncio 84479 info

Villino Via Basilicata, 92019 Sciacca AG, Italia, 92019 Sciacca (AG)

7,00
170,00
2
0
€ 70.800
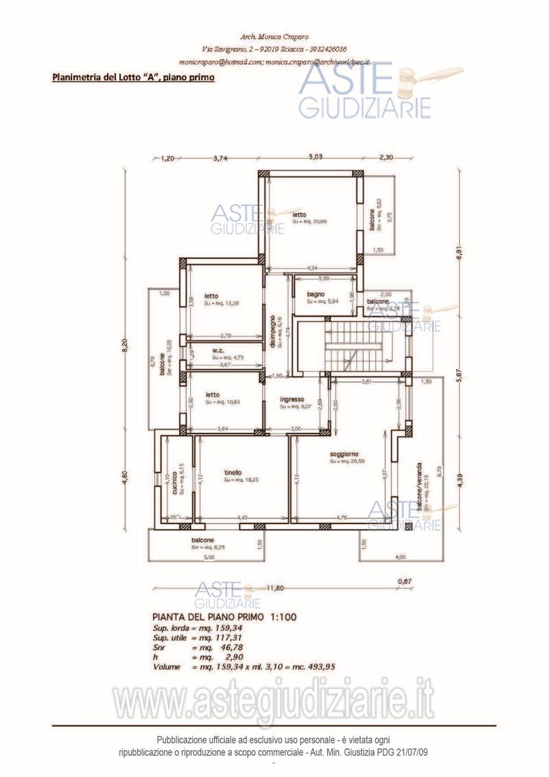
Vendita in attesa dell'emissione del nuovo bando d'asta. LOTTO 1: P. P. imm uso Abitazione in Sciacca (AG) Via Basilicata, snc, cat cens Fg 138, part 183, sub. 9 e 11, P.T. e I - Categoria: A/7 (Abitazioni in villini) Classe: 3 Cons cat: 7 vani Superficie catastale: 170 m2 (Tot escl aree scoperte 154 m2) R. C. € 632,66. La predetta ha a disp la metà dell’app di terreno su cui insiste l’int imm che è pari ad 835 mq; dunque la sup est di pert del Lotto A risulta mq 417,50 (835,00/2). Non vi è A.P.E. Risulta vuoto ad eccezione di alcuni beni mobili del debitore. Ultimo prezzo base € 70.800,00 (offerta minima € 53.100,00). Giudice Veronica Messana. Professionista delegato alla vendita Avv. Maria Rita Stassi - Email "mariaritastassi@gmail.com"; Cell. 3287512709. Custode Giudiziario Avv. Maria Rita Stassi - Email "mariaritastassi@gmail.com"; Cell. 3287512709. Rif. Tribunale di Sciacca - Esecuzione immobiliare post legge 80 n. 25/2018

Superficie 170,00 mq
Vani 7,00
Bagni 2
Piano 0

Tipologia di vendita Giudiziaria
Modalità di vendita Asincrona telematica
Termine presentazione offerte 07/10/2025 ore 17:00
Data e ora inizio gara 08/10/2025 ore 17:00
Codice ID astegiudiziarie.it 4204676
7,00
170,00
2
0
€ 70.800

Ti interessa questa vendita?

north_east

Clicca qui per essere indirizzato alla scheda sul sito di provenienza

Bene di astegiudiziarie.it