highlight_off
Riferimento annuncio 320257 info

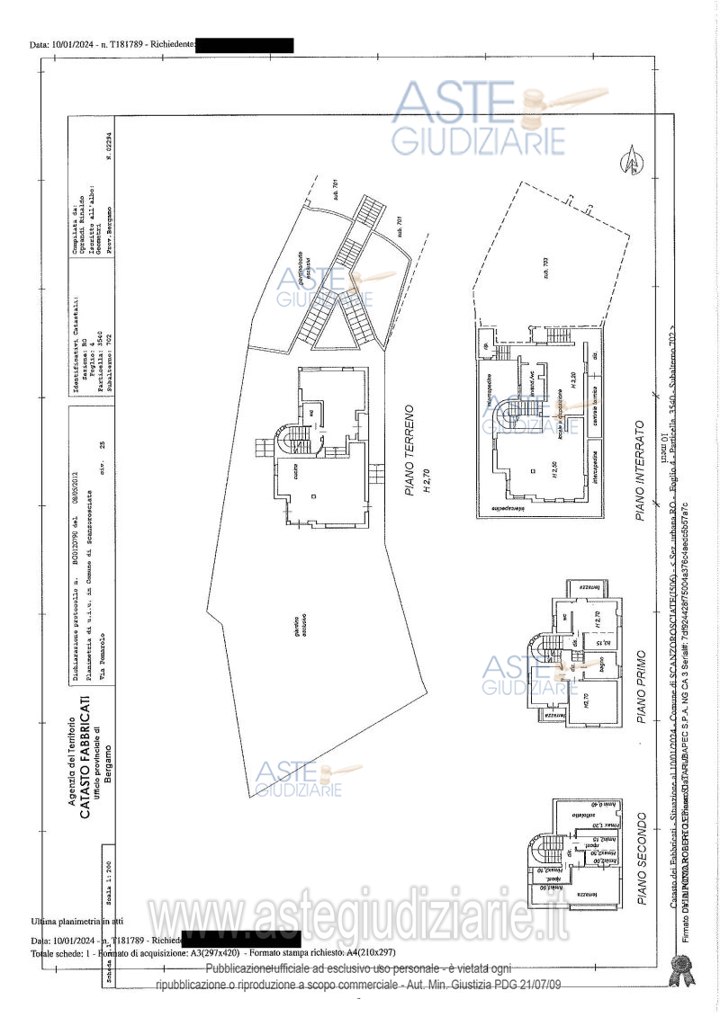
Villino Via Pomarolo, 25/A, 24020 Scanzorosciate (BG)

11,50
0
€ 407.100
Vendita all'asta Senza incanto, con gara telematica asincrona - LOTTO 2: 1) Fabbricato uso abitazione su quattro piani composto da: a) Appartamento ai piani terra, primo, secondo e interrato. b) Autorimessa e ripostiglio a piano seminterrato. Le predette porzioni immobiliari sono gravate dalla quota di comproprietà in ragione di 1/2 (un mezzo) del diritto di abitazione. 2) Appezzamento di terreno contiguo all’area esterna di accesso alla abitazione. Prezzo base € 407.100,00 (offerta minima € 305.325,00). Data inizio operazioni di vendita: 05/05/2026 ore 11:00. Giudice: Dott. Luca Fuzio. Professionista delegato alla vendita: Not. Ernesto Sico - Email "assnotbergamo@notariato.it"; Tel. 035/219426. Custode Giudiziario: Dott. Daniela Ceresoli - Email "dany4e@yahoo.it"; Cell. 340/3526682. Rif. Tribunale di Bergamo - Contenzioso civile n. 6462/2024

Superficie mq
Vani 11,50
Bagni
Piano 0

Tipologia di vendita Giudiziaria
Modalità di vendita Asincrona telematica
Termine presentazione offerte 01/01/1900 ore 00:00
Data e ora inizio gara 05/05/2026 ore 11:00
Codice ID astegiudiziarie.it 4340164
11,50
0
€ 407.100

Ti interessa questa vendita?

north_east

Clicca qui per essere indirizzato alla scheda sul sito di provenienza

Bene di astegiudiziarie.it