highlight_off
Riferimento annuncio 318049 info

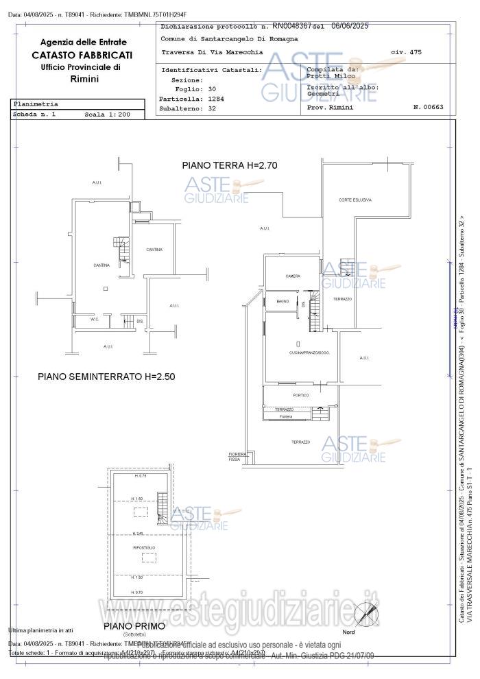
Villino Via Trasversale Marecchia, Santarcangelo di Romagna RN, Italia, 47822 Santarcangelo di Romagna (RN)

5,00
101,00
0
€ 236.000
Vendita all'asta Senza incanto, con gara telematica asincrona - LOTTO UNICO: Piena proprietà di fabbricato urbano ad uso civile abitazione, abbinato su due lati, edificato su terreno tra coperto e scoperto pertinenziale della superficie catastale di mq.2.465 (in mappa al Foglio 30, Particella 1284, Ente Urbano, are 24 ca 65), ubicato nel Comune di Santarcangelo di Romagna (RN), Via Trasversale Marecchia n.475, e facente parte del Condominio denominato “LE DUE VIE”, costituito da una “villetta a schiera” . Prezzo base € 236.000,00 (offerta minima € 177.000,00). Data inizio operazioni di vendita: 17/12/2025 ore 09:30. Professionista delegato alla vendita Not. Elena Pinto - Email "esecuzioni@studiomenalepinto.it"; Tel. 054152111. Custode Giudiziario Not. Elena Pinto - Email "esecuzioni@studiomenalepinto.it"; Tel. 054152111. Rif. Tribunale di Rimini - Esecuzione immobiliare post legge 80 n. 201/2020

Superficie 101,00 mq
Vani 5,00
Bagni
Piano 0

Tipologia di vendita Giudiziaria
Modalità di vendita Asincrona telematica
Termine presentazione offerte 16/12/2025 ore 13:00
Data e ora inizio gara 17/12/2025 ore 09:30
Codice ID astegiudiziarie.it 4338326
5,00
101,00
0
€ 236.000

Ti interessa questa vendita?

north_east

Clicca qui per essere indirizzato alla scheda sul sito di provenienza

Bene di astegiudiziarie.it