highlight_off
Riferimento annuncio 314821 info

Villino Rauscedo, Via Pietro Zorutti, 10, 33095 San Giorgio della Richinvelda (PN)

115,00
357,00
0
€ 348.000
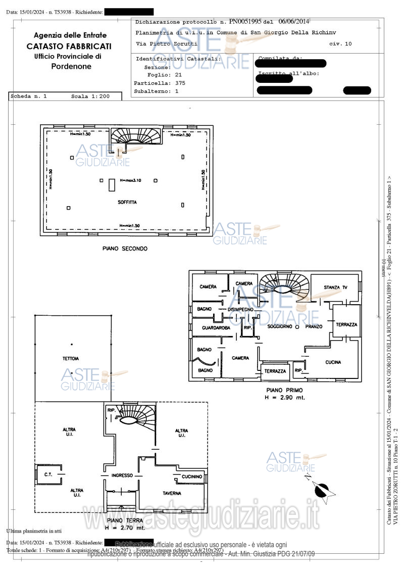
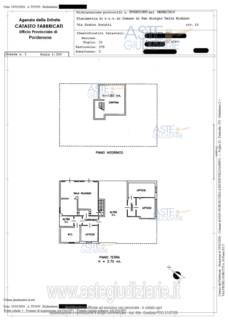
Vendita all'asta Senza incanto, con gara telematica sincrona - LOTTO 1: LOTTO PRIMO: Fabbricato posto all’interno di un’ampia area di pertinenza destinata a giardino, suddiviso in 2 unità immobiliari: il sub. 1 è la parte abitativa privata al primo piano, con ampia soffitta al secondo piano, mentre al sub. 2 c’è una cantina nel piano interrato, gli uffici con servizi e sala riunioni al piano terra. Occupato. Difformità catastali ed edilizie sanabili. Prezzo base € 348.000,00 (offerta minima € 261.000,00). Data vendita 13/07/2026 ore 15:15. Giudice: Dott. Elisa Tesco. Professionista delegato alla vendita: Not. Gaspare Gerardi - Email "ggerardi@notariato.it". Custode Giudiziario: Ass. Not. Custode Giudiziario - Email "custodi@associazionenotarile.pn.it"; Cell. 329/4536349. Rif. Tribunale di Pordenone - Espropriazione immobiliare (cartabia) n. 102/2023

Superficie 357,00 mq
Vani 115,00
Bagni
Piano 0

Tipologia di vendita Giudiziaria
Modalità di vendita Sincrona telematica
Termine presentazione offerte 01/01/1900 ore 00:00
Data e ora inizio gara 13/07/2026 ore 15:15
Codice ID astegiudiziarie.it 4336056
115,00
357,00
0
€ 348.000

Ti interessa questa vendita?

north_east

Clicca qui per essere indirizzato alla scheda sul sito di provenienza

Bene di astegiudiziarie.it