highlight_off
Riferimento annuncio 293081 info

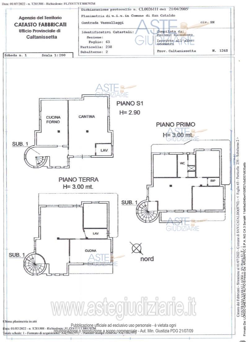
Villino Contrada Vassallaggi, 93017 San Cataldo CL, Italia, 93017 San Cataldo (CL)

14,50
481,85
0
€ 146.933
Vendita all'asta Senza incanto, con gara telematica sincrona mista - LOTTO 1: Abitazione in villini sita in San Cataldo, Contrada Vassallaggi, piani T-1-2. Abitazione in villini sita in San Cataldo, Contrada Vassallaggi, piano 3. Prezzo base € 146.933,00 (offerta minima € 110.200,00). Data vendita 30/12/2025 ore 16:30. Professionista delegato alla vendita Avv. Vincenzo Toscano. Custode Giudiziario Avv. Vincenzo Toscano - Email "avv.vincenzotoscano@gmail.com"; Cell. 3339943751; Tel. 0934563102. Rif. Tribunale di Caltanissetta - Esecuzione immobiliare post legge 80 n. 11/2020

Superficie 481,85 mq
Vani 14,50
Bagni
Piano 0

Tipologia di vendita Giudiziaria
Modalità di vendita Sincrona mista
Termine presentazione offerte 29/12/2025 ore 12:00
Data e ora inizio gara 30/12/2025 ore 16:30
Codice ID astegiudiziarie.it 4318418
14,50
481,85
0
€ 146.933

Ti interessa questa vendita?

north_east

Clicca qui per essere indirizzato alla scheda sul sito di provenienza

Bene di astegiudiziarie.it