highlight_off
Riferimento annuncio 332665 info

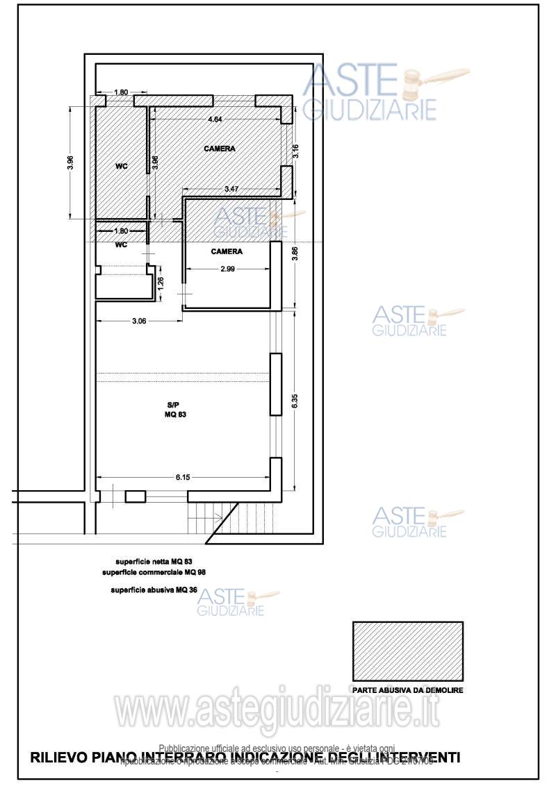
Villino Via Picciano, 48, int. 5 00132 Roma RM, Italia, 00100 Roma (RM)

5,00
168,74
2
0
€ 152.000
Vendita all'asta Senza incanto, con gara telematica asincrona - LOTTO UNICO: Quota pari a 1/1 del diritto di piena proprietà su villetta ubicata in Roma, in Via Picciano n. 48, int. 5, piano S1-T-1 con giardino e posto auto. Prezzo base € 152.000,00 (offerta minima € 114.000,00). Data inizio operazioni di vendita: 18/06/2026 ore 14:00. Giudice: Federica D'ambrosio. Professionista delegato alla vendita: Avv. Maria Ancora. Custode Giudiziario: I.V.G Di Roma S.R.L. Istituto Vendite Giudiziarie - Email "pubblicita@ivgroma.it"; Tel. 06/83751500. Rif. Tribunale di Roma - Espropriazione immobiliare (cartabia) n. 9/2025

Superficie 168,74 mq
Vani 5,00
Bagni 2
Piano 0

Tipologia di vendita Giudiziaria
Modalità di vendita Asincrona telematica
Termine presentazione offerte 01/01/1900 ore 00:00
Data e ora inizio gara 18/06/2026 ore 14:00
Codice ID astegiudiziarie.it 4347554
5,00
168,74
2
0
€ 152.000

Ti interessa questa vendita?

north_east

Clicca qui per essere indirizzato alla scheda sul sito di provenienza

Bene di astegiudiziarie.it