highlight_off
Riferimento annuncio 329666 info

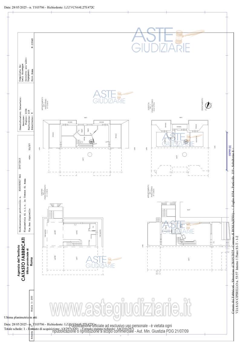
Villino Via S. Cipirello, 53/57, 00132 Roma RM, Italia, 00100 Roma (RM)

9,00
377,00
3
0
€ 330.000
Vendita all'asta Senza incanto, con gara telematica asincrona - LOTTO UNICO: Bene n. 1): Porzione di Villino sito in Roma (RM), Via San Cipirello 53/57, int. 1, posto su quattro livelli (piani S1, T, 1,2); Bene n. 2): Magazzino ubicato in Roma (RM), Via San Cipirello n. 53/57, piano S1. Prezzo base € 330.000,00 (offerta minima € 247.500,00). Data inizio operazioni di vendita: 17/06/2026 ore 11:00. Giudice: Russo. Professionista delegato alla vendita: Avv. Barbara Saraceni. Custode Giudiziario: Ivg Di Roma Srl - Email "pvp@visiteivgroma.it"; Tel. 06/89569801. Rif. Tribunale di Roma - Espropriazione immobiliare (cartabia) n. 1033/2024

Superficie 377,00 mq
Vani 9,00
Bagni 3
Piano 0

Tipologia di vendita Giudiziaria
Modalità di vendita Asincrona telematica
Termine presentazione offerte 01/01/1900 ore 00:00
Data e ora inizio gara 17/06/2026 ore 11:00
Codice ID astegiudiziarie.it 4347533
9,00
377,00
3
0
€ 330.000

Ti interessa questa vendita?

north_east

Clicca qui per essere indirizzato alla scheda sul sito di provenienza

Bene di astegiudiziarie.it