highlight_off
Riferimento annuncio 329474 info

Villino Via S. Pier Niceto, 18, Roma RM, Italia, 00100 Roma (RM)

5,00
109,00
2
0
€ 166.000
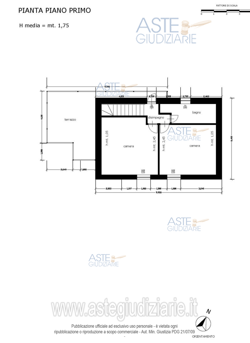
Vendita all'asta Senza incanto, con gara telematica asincrona - LOTTO 1: Quota pari a 100/100 del diritto di proprietà su abitazione sita in Roma, zona Borgata Finocchio, Via San Pier Niceto n. 18, piccola villetta bilivelli ad uso abitazione, composta da ingresso, soggiorno-pranzo, bagno, cucina e ripostiglio al piano terra, per una superficie lorda coperta di mq 64,00 e due camere, bagno e terrazzo al piano primo, per una superficie lorda coperta di mq 64,00 più terrazzo di mq 21,00 lordi, con annessa corte pertinenziale esclusiva di mq 156,00, più piccolo manufatto. Prezzo base € 166.000,00 (offerta minima € 124.500,00). Data inizio operazioni di vendita: 04/06/2026 ore 11:00. Giudice: Iappelli. Professionista delegato alla vendita: Avv. Ivan Carpigo. Custode Giudiziario: Ivg Di Roma Srl - Email "PVP@VISITEIVGROMA.IT"; Tel. 06/89569801. Rif. Tribunale di Roma - Espropriazione immobiliare (cartabia) n. 947/2024

Superficie 109,00 mq
Vani 5,00
Bagni 2
Piano 0

Tipologia di vendita Giudiziaria
Modalità di vendita Asincrona telematica
Termine presentazione offerte 03/06/2026 ore 23:59
Data e ora inizio gara 04/06/2026 ore 11:00
Codice ID astegiudiziarie.it 4346112
5,00
109,00
2
0
€ 166.000

Ti interessa questa vendita?

north_east

Clicca qui per essere indirizzato alla scheda sul sito di provenienza

Bene di astegiudiziarie.it