highlight_off
Riferimento annuncio 327179 info

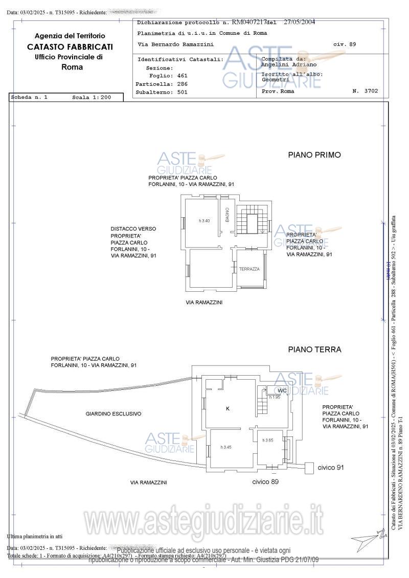
Villino Via Bernardino Ramazzini, 89, 00151 Roma RM, Italia, 00100 Roma (RM)

6,50
108,30
2
0
€ 630.000
Vendita all'asta Senza incanto, con gara telematica asincrona - LOTTO UNICO: Villetta IN Edificio Unico, scala Unica, piano T-1, di vani catastali 6,5, oltre a corte pertinenziale.Attualmente così composto: Ingresso, soggiorno, cucina, ripostiglio, vano scala e W.C., disimpegno, n.2 camere, bagno, oltre terrazzo di pertinenza esclusiva e area scoperta di pertinenza esclusiva di mq. 108,30. Prezzo base € 630.000,00 (offerta minima € 472.500,00). Data inizio operazioni di vendita: 07/05/2026 ore 15:00. Giudice Dott. Giuseppe Lauropoli. Professionista delegato alla vendita Dott. Fabrizio Ricciardi. Custode Giudiziario Ivg Di Roma Srl - Email "PVP@VISITEIVGROMA.IT". Rif. Tribunale di Roma - Espropriazione immobiliare (cartabia) n. 439/2024

Superficie 108,30 mq
Vani 6,50
Bagni 2
Piano 0

Tipologia di vendita Giudiziaria
Modalità di vendita Asincrona telematica
Termine presentazione offerte 01/01/1900 ore 00:00
Data e ora inizio gara 07/05/2026 ore 15:00
Codice ID astegiudiziarie.it 4343890
6,50
108,30
2
0
€ 630.000

Ti interessa questa vendita?

north_east

Clicca qui per essere indirizzato alla scheda sul sito di provenienza

Bene di astegiudiziarie.it