highlight_off
Riferimento annuncio 322528 info

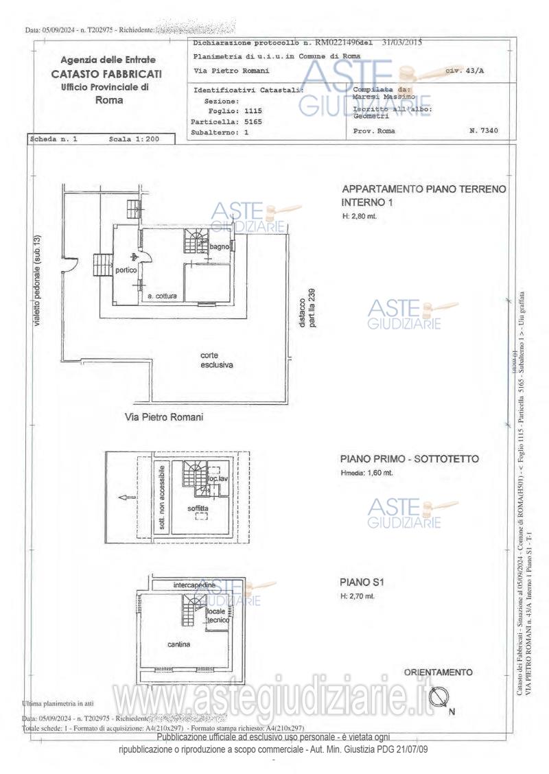
Villino Via Pietro Romani, 43, 00124 Roma RM, Italia, 00100 Roma (RM)

4,50
94,00
2
0
€ 210.000
Vendita all'asta Senza incanto, con gara telematica asincrona - LOTTO 1: Quota pari al 100/100 (1/1) del diritto di piena proprietà sull’immobile sito in Roma composto da: Appartamento ubicato in Roma (RM) - Via Pietro Romani n. 43/A int. 1, interno 1, piano S1-T-1, di Categoria A/7, villino per civile abitazione, facente parte di un complesso di sei villini, con corte circostante ed autorimessa in box al piano interrato in Via Pietro Romani n. 43/C. Prezzo base € 210.000,00 (offerta minima € 157.500,00). Data inizio operazioni di vendita: 26/02/2026 ore 14:00. Giudice Dott. Fernando Scolaro. Professionista delegato alla vendita Avv. Gianfranco Buonocunto. Custode Giudiziario Ivg Di Roma Srl - Email "pvp@visiteivgroma.it"; Tel. 0689569801. Rif. Tribunale di Roma - Esecuzione immobiliare post legge 80 n. 1163/2022

Superficie 94,00 mq
Vani 4,50
Bagni 2
Piano 0

Tipologia di vendita Giudiziaria
Modalità di vendita Asincrona telematica
Termine presentazione offerte 01/01/1900 ore 00:00
Data e ora inizio gara 26/02/2026 ore 14:00
Codice ID astegiudiziarie.it 4342253
4,50
94,00
2
0
€ 210.000

Ti interessa questa vendita?

north_east

Clicca qui per essere indirizzato alla scheda sul sito di provenienza

Bene di astegiudiziarie.it