highlight_off
Riferimento annuncio 316089 info

Villino Via Giovanni Becatti, 32, 00119 Roma RM, Italia, 00100 Roma (RM)

3,00
81,00
2
0
€ 160.000
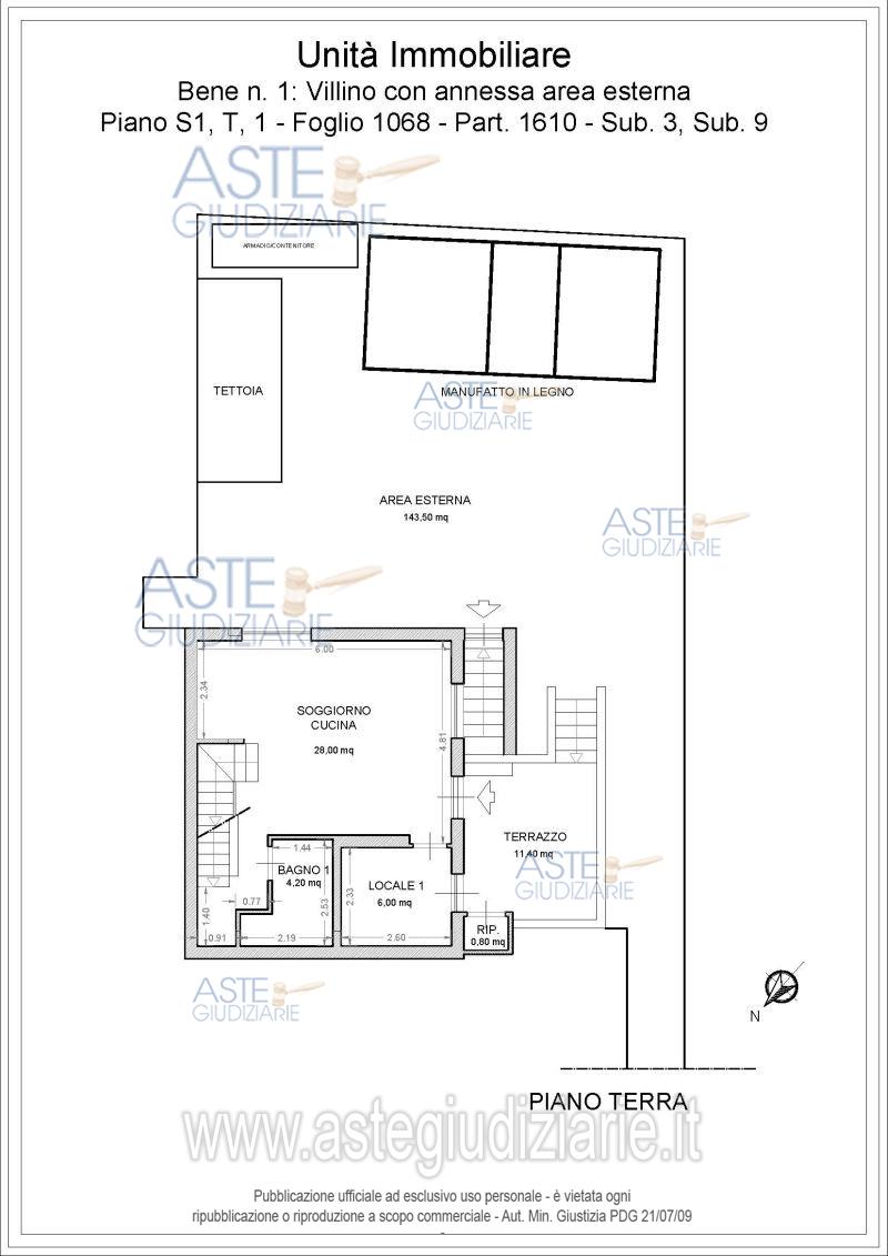
Vendita all'asta Senza incanto, con gara telematica asincrona - LOTTO UNICO: Quota pari a 100/100 (1/1) del diritto di piena proprietà sull’immobile sito in Roma (Ostia Antica) Via Giovanni Becatti, n. 32, Villino con annessa area di pertinenza esterna + Posto auto scoperto . Prezzo base € 160.000,00 (offerta minima € 120.000,00). Data inizio operazioni di vendita: 04/12/2025 ore 12:00. Giudice Dott. Miriam Iappelli. Professionista delegato alla vendita Avv. Gianfranco Buonocunto. Custode Giudiziario Ivg Di Roma Srl - Email "pvp@visiteivgroma.it"; Tel. 0689569801. Rif. Tribunale di Roma - Espropriazione immobiliare (cartabia) n. 1067/2023

Superficie 81,00 mq
Vani 3,00
Bagni 2
Piano 0

Tipologia di vendita Giudiziaria
Modalità di vendita Asincrona telematica
Termine presentazione offerte 01/01/1900 ore 00:00
Data e ora inizio gara 04/12/2025 ore 12:00
Codice ID astegiudiziarie.it 4336978
3,00
81,00
2
0
€ 160.000

Ti interessa questa vendita?

north_east

Clicca qui per essere indirizzato alla scheda sul sito di provenienza

Bene di astegiudiziarie.it