highlight_off
Riferimento annuncio 313361 info

Villino Via Bernardino Alimena, 30/g, 00100 Roma (RM)

3,00
179,33
3
0
€ 127.000
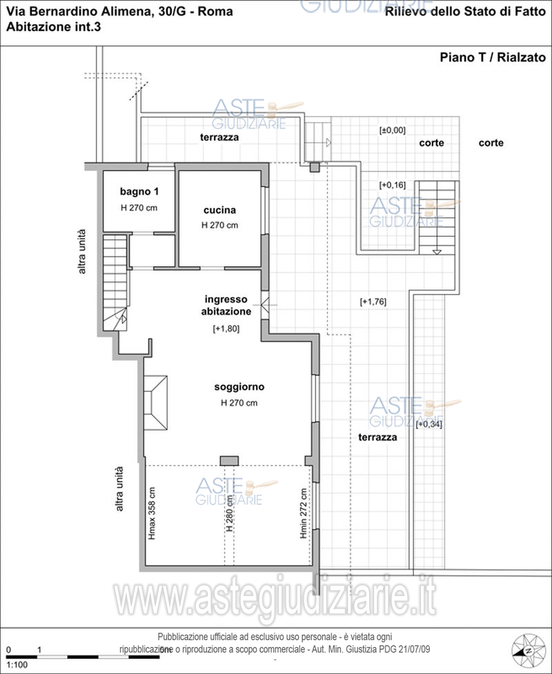
Vendita all'asta Senza incanto, con gara telematica asincrona - LOTTO UNICO: Abitazione in villino posta su due livelli (S1 - T) con corte esclusiva, composta al Piano Terra da terrazzo in parte coperto (collegato alla corte esclusiva da scala esterna), ingresso - salone doppio, cucina, disimpegno e bagno; al Piano S1 (collegato al PT da scala interna) da vano passante, disimpegno, tre camere e due bagni, il tutto per una superficie convenzionale complessiva di mq 165,10, con annessi box auto e posto auto; . Prezzo base € 127.000,00 (offerta minima € 95.250,00). Data inizio operazioni di vendita: 14/07/2026 ore 14:00. Giudice Dott. Miriam Iappelli. Professionista delegato alla vendita Not. Igor Genghini. Custode Giudiziario Ivg Di Roma Srl - Email "pvp@visiteivgroma.it"; Tel. 06/89569801. Rif. Tribunale di Roma - Espropriazione immobiliare (cartabia) n. 569/2024

Superficie 179,33 mq
Vani 3,00
Bagni 3
Piano 0

Tipologia di vendita Giudiziaria
Modalità di vendita Asincrona telematica
Termine presentazione offerte 13/07/2026 ore 23:59
Data e ora inizio gara 14/07/2026 ore 14:00
Codice ID astegiudiziarie.it 4333792
3,00
179,33
3
0
€ 127.000

Ti interessa questa vendita?

north_east

Clicca qui per essere indirizzato alla scheda sul sito di provenienza

Bene di astegiudiziarie.it