highlight_off
Riferimento annuncio 309346 info

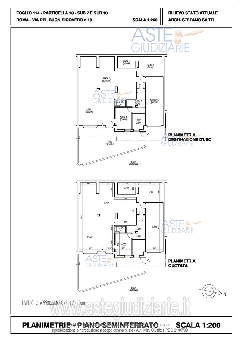
Villino Via del Buon Ricovero, 10, 00189 Roma RM, Italia, 00100 Roma (RM)

11,00
388,94
3
0
€ 543.200
Vendita all'asta Senza incanto, con gara telematica asincrona - LOTTO UNICO: Villino - piano S1-T-1 - edificio D, int. 3 e box auto. Prezzo base € 543.200,00 (offerta minima € 407.400,00). Data inizio operazioni di vendita: 16/12/2025 ore 13:00. Giudice Iappelli\. Professionista delegato alla vendita Avv. Aldo Cimmino. Custode Giudiziario Ivg Di Roma Srl - Email "pvp@visiteivgroma.it"; Tel. 0689569801. Rif. Tribunale di Roma - Esecuzione immobiliare post legge 80 n. 1290/2022

Superficie 388,94 mq
Vani 11,00
Bagni 3
Piano 0

Tipologia di vendita Giudiziaria
Modalità di vendita Asincrona telematica
Termine presentazione offerte 15/12/2025 ore 23:59
Data e ora inizio gara 16/12/2025 ore 13:00
Codice ID astegiudiziarie.it 4329511
11,00
388,94
3
0
€ 543.200

Ti interessa questa vendita?

north_east

Clicca qui per essere indirizzato alla scheda sul sito di provenienza

Bene di astegiudiziarie.it