highlight_off
Riferimento annuncio 156348 info

Villino Via Sant'Efisio, 09010 Pula CA, Italia, 09050 Pula (CA)

8,00
2224,00
0
€ 136.000
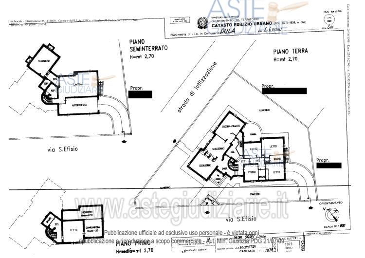
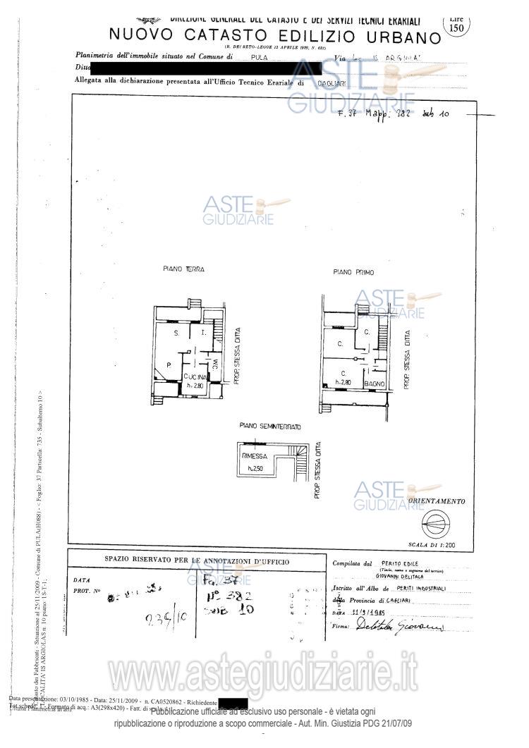
Vendita all'asta Senza incanto, con gara telematica asincrona - LOTTO 1: Quota pari all’intero del diritto di usufrutto sull’immobile sito a Pula , sul fabbricato per civile abitazione su tre livelli avente accesso dalla Via S.Efisio, composto al piano seminterrato da locale di sgombero, tre disimpegni, una cantina, un’autorimessa, un ripostiglio; al piano terra da soggiorno, cucina-pranzo, quattro disimpegni, tre bagni, tre camere, uno studio, due loggiati, area cortilizia; al piano primo da una camera, un locale guardaroba, un disimpegno, un bagno, un locale sottotetto. Prezzo base € 136.000,00 (offerta minima € 102.000,00). Data inizio operazioni di vendita: 13/01/2026 ore 11:00. Giudice Dott. Silvia Cocco. Professionista delegato alla vendita Not. Stefano Casti - Email "ufficiouniconotai@pec.it"; Tel. 07060222574. Custode Giudiziario Ivg Cagliari - Email "ivg.visiteimmobili@tiscali.it"; Tel. 0702299036. Rif. Tribunale di Cagliari - Esecuzione immobiliare post legge 80 n. 192/2005

Superficie 2224,00 mq
Vani 8,00
Bagni
Piano 0

Tipologia di vendita Giudiziaria
Modalità di vendita Asincrona telematica
Termine presentazione offerte 01/01/1900 ore 00:00
Data e ora inizio gara 13/01/2026 ore 11:00
Codice ID astegiudiziarie.it 420670
8,00
2224,00
0
€ 136.000

Ti interessa questa vendita?

north_east

Clicca qui per essere indirizzato alla scheda sul sito di provenienza

Bene di astegiudiziarie.it