highlight_off
Riferimento annuncio 224679 info

Villino Via Michelangelo Buonarroti, 7, 59021 Vaiano PO, Italia, 59100 Prato (PO)

6200,00
0
€ 817.500
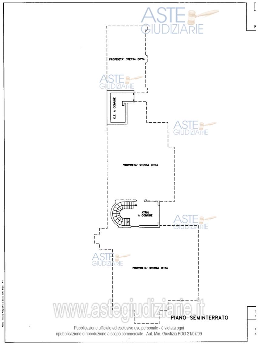
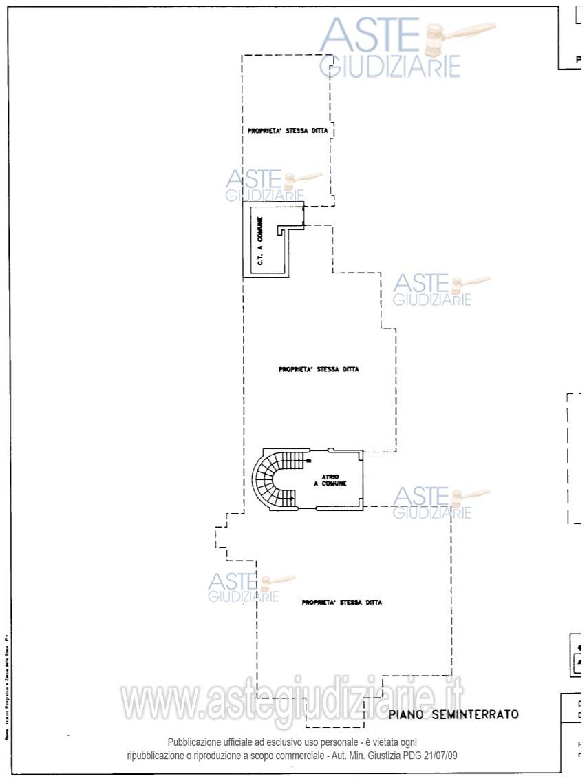
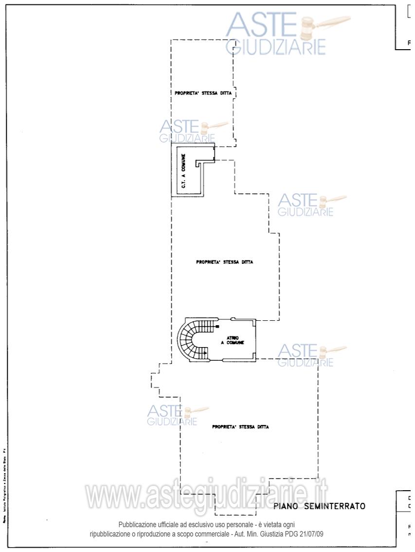
Vendita all'asta Senza incanto, con gara telematica sincrona - LOTTO 2: INTERA QUOTA 1/1 NUDA PROPRIETÀ. Ampio lotto di circa 6.200 mq. ubicato in via M. Buonarroti a Vaiano (PO) raggiungibile dalla pubblica strada attraverso ingresso pedonale e carrabile al nc. 7; all’interno vi è situato un fabbricato residenziale libero su quattro lati, dislocato su tre livelli, suddiviso in quattro unità abitative, un autorimessa oltre accessori comuni quali un locale forno, una centrale termica, una serra esterna; il tutto dotato di ampio terreno comune ad uso resede/giardino. Prezzo base € 817.500,00 (offerta minima € 613.125,00). Data vendita 04/02/2026 ore 15:30. Giudice Elisabetta Donelli. Professionista delegato alla vendita Avv. Silvia Impalli - Email "silvia.impalli@gmail.com"; Tel. 3382464196. Custode Giudiziario Avv. Silvia Impalli - Email "silvia.impalli@gmail.com"; Tel. 3382464196. Rif. Tribunale di Prato - Esecuzione immobiliare post legge 80 n. 1/2017

Superficie 6200,00 mq
Vani
Bagni
Piano 0

Tipologia di vendita Giudiziaria
Modalità di vendita Sincrona telematica
Termine presentazione offerte 01/01/1900 ore 00:00
Data e ora inizio gara 04/02/2026 ore 15:30
Codice ID astegiudiziarie.it 4270570
6200,00
0
€ 817.500

Ti interessa questa vendita?

north_east

Clicca qui per essere indirizzato alla scheda sul sito di provenienza

Bene di astegiudiziarie.it