highlight_off
Riferimento annuncio 330290 info

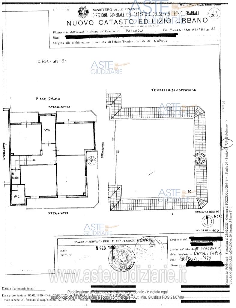
Villino Via S. Gennaro Agnano, 29, 80078 Pozzuoli NA, Italia, 80078 Pozzuoli (NA)

11,50
314,00
4
0
€ 240.000
Vendita all'asta Senza incanto, con gara telematica asincrona - LOTTO UNICO: Piena ed intera proprietà di villino bifamiliare (composto da due unità immobiliari) sito in Pozzuoli (Napoli) alla via San Gennaro Agnano 29, facente parte del complesso immobiliare denominato “Parco San Domenico": -Unità abitativa, identificata dalla p.lla 754, della superficie commerciale di circa mq 298, sviluppante su quattro livelli;- Unità abitativa, identificata dalla p.lla 752, della superficie commerciale di circa mq. 305, si sviluppa su quattro livelli . Prezzo base € 240.000,00 (offerta minima € 180.000,00). Data inizio operazioni di vendita: 16/06/2026 ore 11:00. Professionista delegato alla vendita Avv. Francesca Di Gennaro - Email "francescadigennaro@studiolegalemaggi.it"; Cell. 3280511816; Tel. 3280511816. Custode Giudiziario Avv. Francesca Di Gennaro - Email "francescadigennaro@studiolegalemaggi.it"; Cell. 3280511816; Tel. 3280511816. Rif. Tribunale di Napoli - Espropriazione immobiliare (cartabia) n. 640/2024

Superficie 314,00 mq
Vani 11,50
Bagni 4
Piano 0

Tipologia di vendita Giudiziaria
Modalità di vendita Asincrona telematica
Termine presentazione offerte 15/06/2026 ore 23:59
Data e ora inizio gara 16/06/2026 ore 11:00
Codice ID astegiudiziarie.it 4347847
11,50
314,00
4
0
€ 240.000

Ti interessa questa vendita?

north_east

Clicca qui per essere indirizzato alla scheda sul sito di provenienza

Bene di astegiudiziarie.it