highlight_off
Riferimento annuncio 254344 info

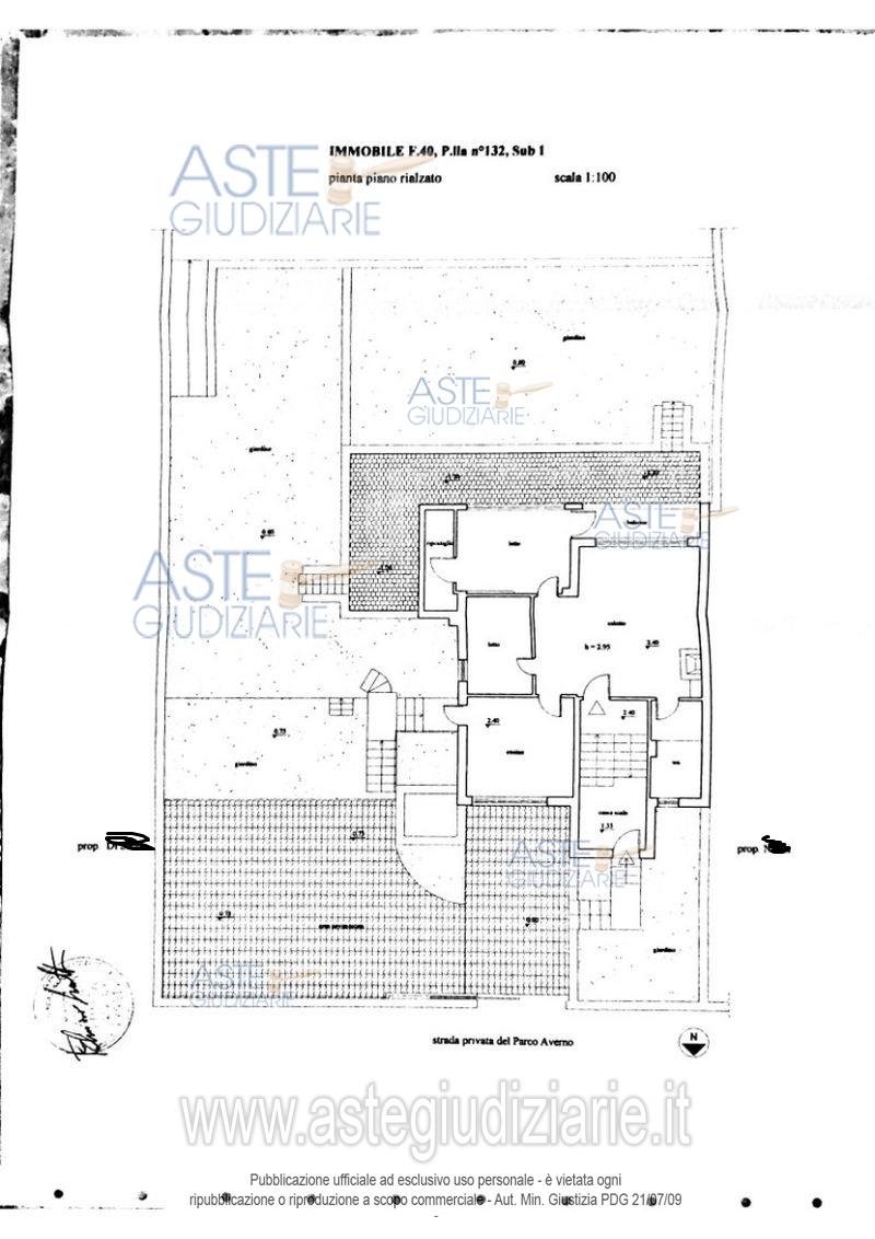
Villino Traversa Strigari n. 18, 80078 Pozzuoli (NA)

10,00
540,40
2
0
€ 245.786
Vendita all'asta Senza incanto, con gara telematica asincrona - LOTTO UNICO: Quota pari all'intero della piena proprietà di 1) Villa unifamiliare su tre livelli con giardino circostante, sita in Pozzuoli (NA), Parco Averno, alla Via Domitiana km 55, oggi Traversa Strigari n. 18 e 2) Garage al piano seminterrato. Prezzo base € 245.785,96 (offerta minima € 184.339,47). Data inizio operazioni di vendita: 13/01/2026 ore 15:00. Professionista delegato alla vendita Avv. Ersilio Luca Capone - Email "e.capone@llab.lawyer"; Cell. 3496619702; Tel. 3496619702. Custode Giudiziario Avv. Ersilio Luca Capone - Email "e.capone@llab.lawyer". Rif. Tribunale di Napoli - Esecuzione immobiliare post legge 80 n. 1222/2002

Superficie 540,40 mq
Vani 10,00
Bagni 2
Piano 0

Tipologia di vendita Giudiziaria
Modalità di vendita Asincrona telematica
Termine presentazione offerte 12/01/2026 ore 23:59
Data e ora inizio gara 13/01/2026 ore 15:00
Codice ID astegiudiziarie.it 4288683
10,00
540,40
2
0
€ 245.786

Ti interessa questa vendita?

north_east

Clicca qui per essere indirizzato alla scheda sul sito di provenienza

Bene di astegiudiziarie.it