highlight_off
Riferimento annuncio 283216 info

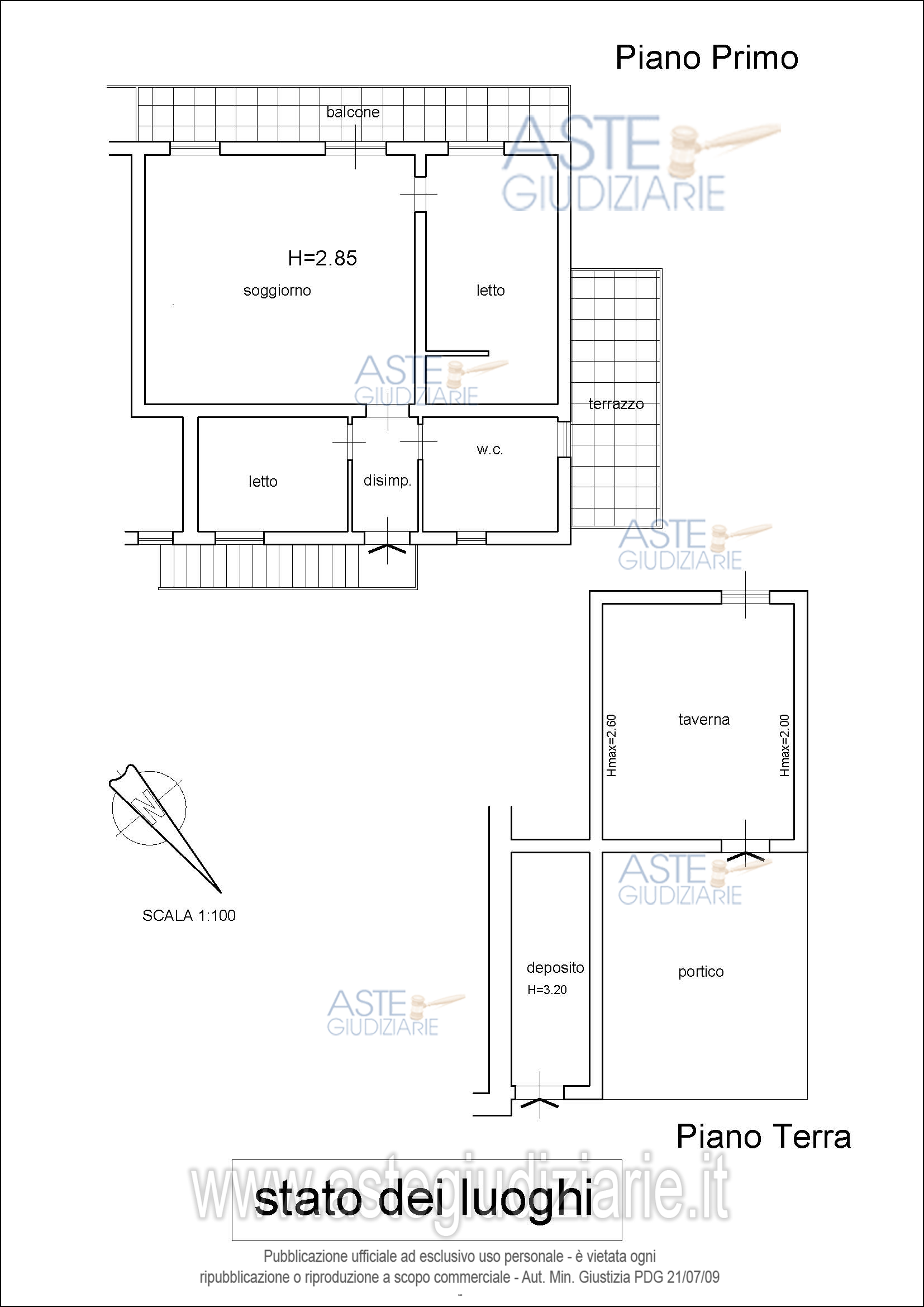
Villino via Colle Caroso n. 27, 00036 Palestrina (RM)

0
€ 20.820
Vendita all'asta Senza incanto, con gara telematica asincrona - LOTTO UNICO: Abitazione al piano primo con accessori al piano terra (cantine/magazzini) sita a Palestrina (Rm) in via Colle Caroso n. 27 (cat. A7). All'appartamento si accede con una scala esterna, ed è composto da ingresso, soggiorno con angolo cottura, due camere da letto e bagno. Rilevate consistenti difformità tra stato attuale e titoli edilizi. Difetta di prova certa della continuità delle trascrizioni al ventennio anteriore al pignoramento. Immobile occupato ex art. 560 c. 3 c.p.c. Prezzo base € 20.820,00 (offerta minima € 15.615,00). Data inizio operazioni di vendita: 05/11/2025 ore 14:00. Professionista delegato alla vendita Avv. Claudia Di Pasquali - Email "claudiadipasquali@libero.it"; Cell. 3493172307. Custode Giudiziario Ivg Di Roma Srl - Email "pvp@visiteivgroma.it"; Tel. 0683751500. Rif. Tribunale di Tivoli - Esecuzione immobiliare post legge 80 n. 336/2011

Superficie mq
Vani
Bagni
Piano 0

Tipologia di vendita Giudiziaria
Modalità di vendita Asincrona telematica
Termine presentazione offerte 01/01/1900 ore 00:00
Data e ora inizio gara 05/11/2025 ore 14:00
Codice ID astegiudiziarie.it 2816050
0
€ 20.820

Ti interessa questa vendita?

north_east

Clicca qui per essere indirizzato alla scheda sul sito di provenienza

Bene di astegiudiziarie.it