highlight_off
Riferimento annuncio 269993 info

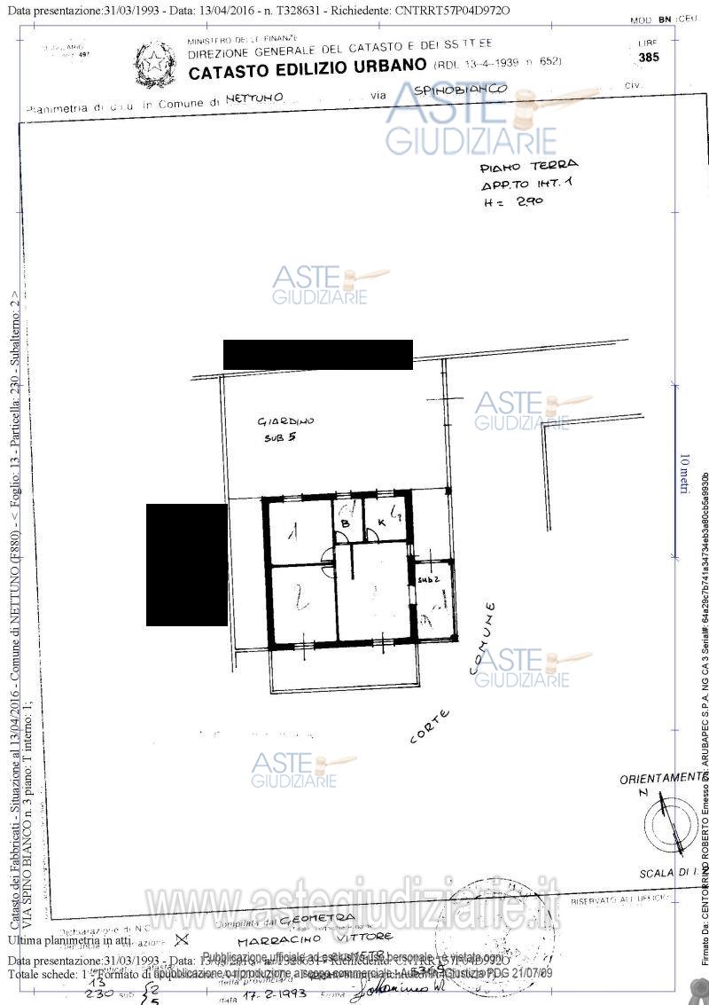
Villino Via Spino Bianco, 13, 00048 Nettuno RM, Italia, 00048 Nettuno (RM)

5,00
95,77
1
0
€ 68.000
Vendita all'asta Senza incanto - LOTTO UNICO: Appartamento posto ai piani terra e seminterrato. Prezzo base € 68.000,00 (offerta minima € 51.000,00). Data vendita 04/12/2025 ore 10:30. Giudice Dott. Raffaella Calvanese. Professionista delegato alla vendita Not. Paolo Girolami - Tel. 069421015. Custode Giudiziario Istituto Vendite Giudiziarie Di Roma - Email "pvp@visiteivgroma.it"; Tel. 0689569801. Rif. Tribunale di Velletri - Esecuzione immobiliare post legge 80 n. 165/2015

Superficie 95,77 mq
Vani 5,00
Bagni 1
Piano 0

Tipologia di vendita Giudiziaria
Modalità di vendita Presso il venditore
Termine presentazione offerte 01/01/1900 ore 00:00
Data e ora inizio gara 04/12/2025 ore 10:30
Codice ID astegiudiziarie.it 430268
5,00
95,77
1
0
€ 68.000

Ti interessa questa vendita?

north_east

Clicca qui per essere indirizzato alla scheda sul sito di provenienza

Bene di astegiudiziarie.it