highlight_off
Riferimento annuncio 311185 info

Villino S.da Provinciale di Caserta, 80144 Napoli NA, Italia, 80100 Napoli (NA)

6,50
146,00
1
€ 180.000
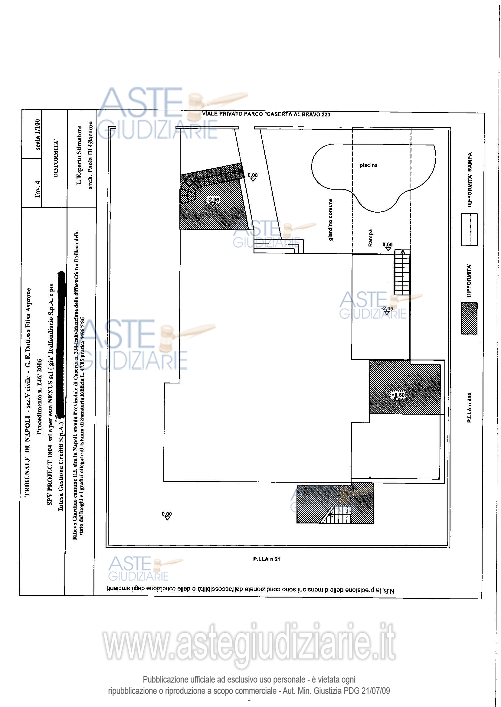
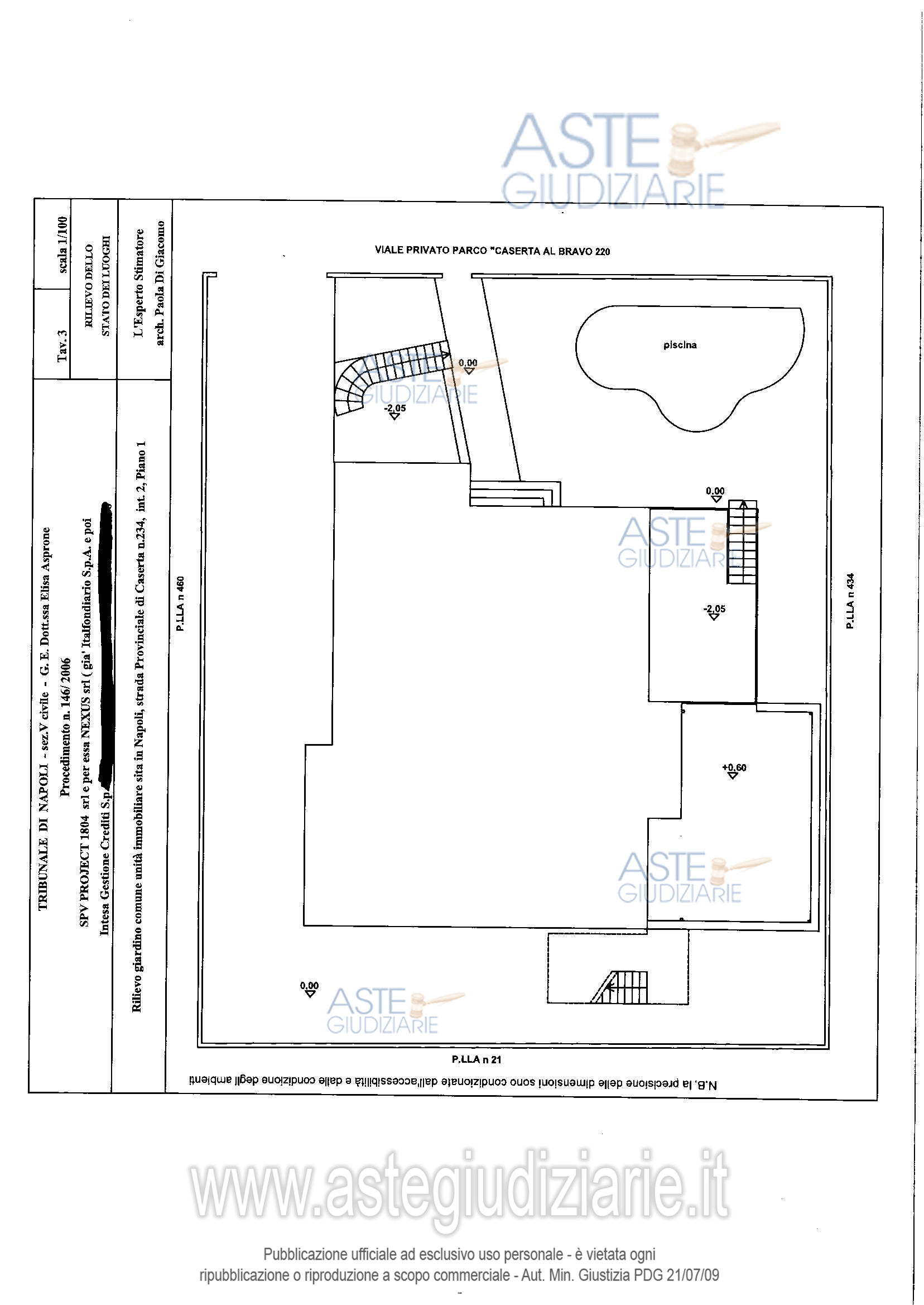
Vendita all'asta Senza incanto, con gara telematica asincrona - LOTTO UNICO: Proprietà Comune di NAPOLI, Quartiere San Pietro a Patierno: LOTTO UNICO: Strada Provinciale di Caserta n. 234 (catastalmente Strada Provinciale Caserta al Bravo n. 220), Parco Caserta al Bravo 220, abitazione in villino, 1° piano, interno 2, accesso da giardino comune, con scala esterna, soggiorno, cucina, corridoio, tre stanze, due wc, balcone, veranda, terrazzo e ballatoio. Libero. Prezzo base euro 180.000,00 - Offerta minima euro 135.000,00. Prezzo base € 180.000,00 (offerta minima € 135.000,00). Data inizio operazioni di vendita: 28/01/2026 ore 12:00. Professionista delegato alla vendita Avv. Maria Angela Zaccagnino - Email "avv.mzaccagnino@gmail.com"; Cell. 3387065811; Tel. 081422477. Custode Giudiziario Avv. Maria Angela Zaccagnino - Email "avv.mzaccagnino@gmail.com"; Cell. 3387065811; Tel. 081422477. Rif. Tribunale di Napoli - Esecuzione immobiliare post legge 80 n. 146/2006

Superficie 146,00 mq
Vani 6,50
Bagni
Piano 1

Tipologia di vendita Giudiziaria
Modalità di vendita Asincrona telematica
Termine presentazione offerte 01/01/1900 ore 00:00
Data e ora inizio gara 28/01/2026 ore 12:00
Codice ID astegiudiziarie.it 4332683
6,50
146,00
1
€ 180.000

Ti interessa questa vendita?

north_east

Clicca qui per essere indirizzato alla scheda sul sito di provenienza

Bene di astegiudiziarie.it