highlight_off
Riferimento annuncio 311354 info

Villino Via Sant'Anzino, 15, 00015 Monterotondo RM, Italia, 00015 Monterotondo (RM)

0
€ 285.705
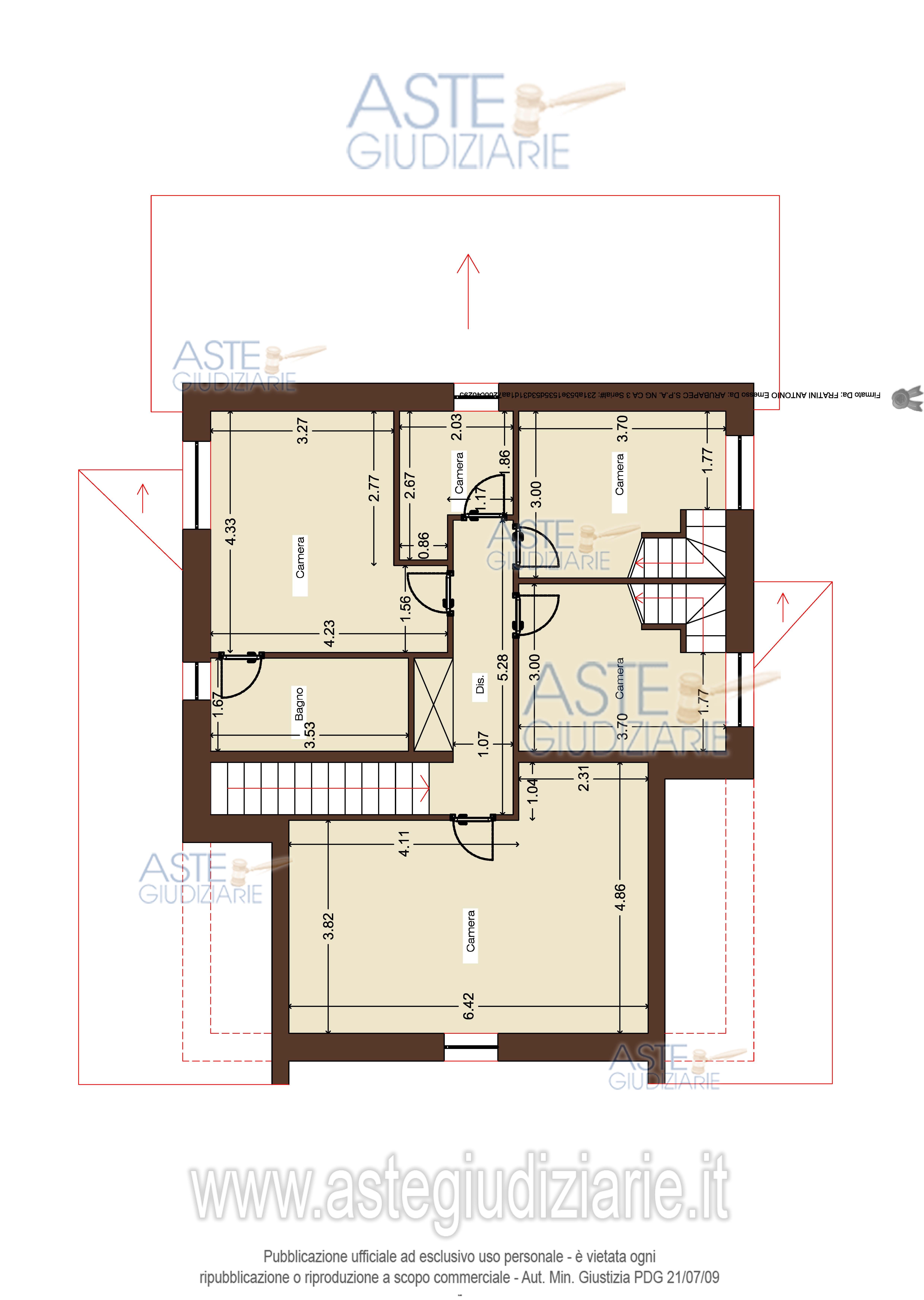
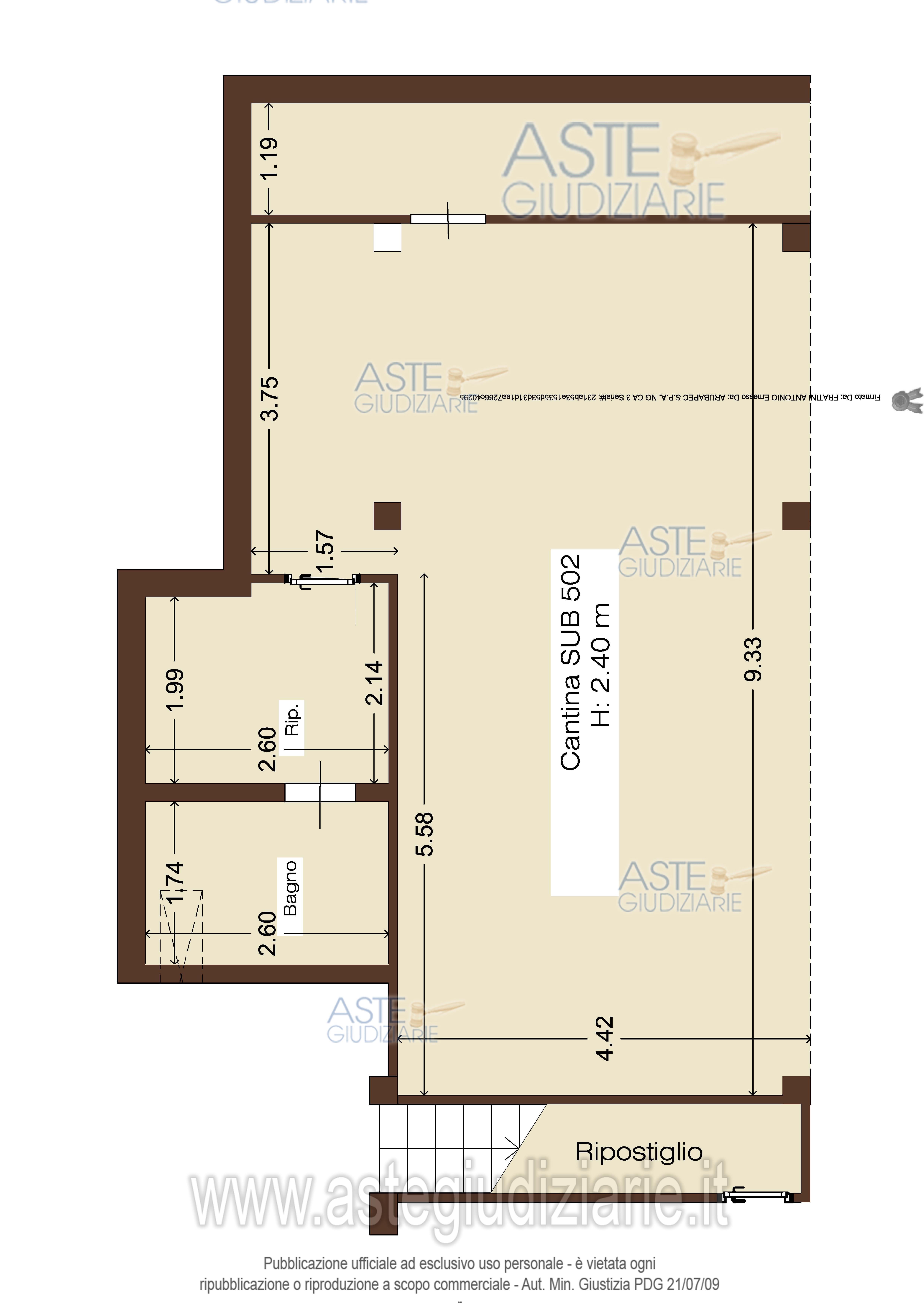
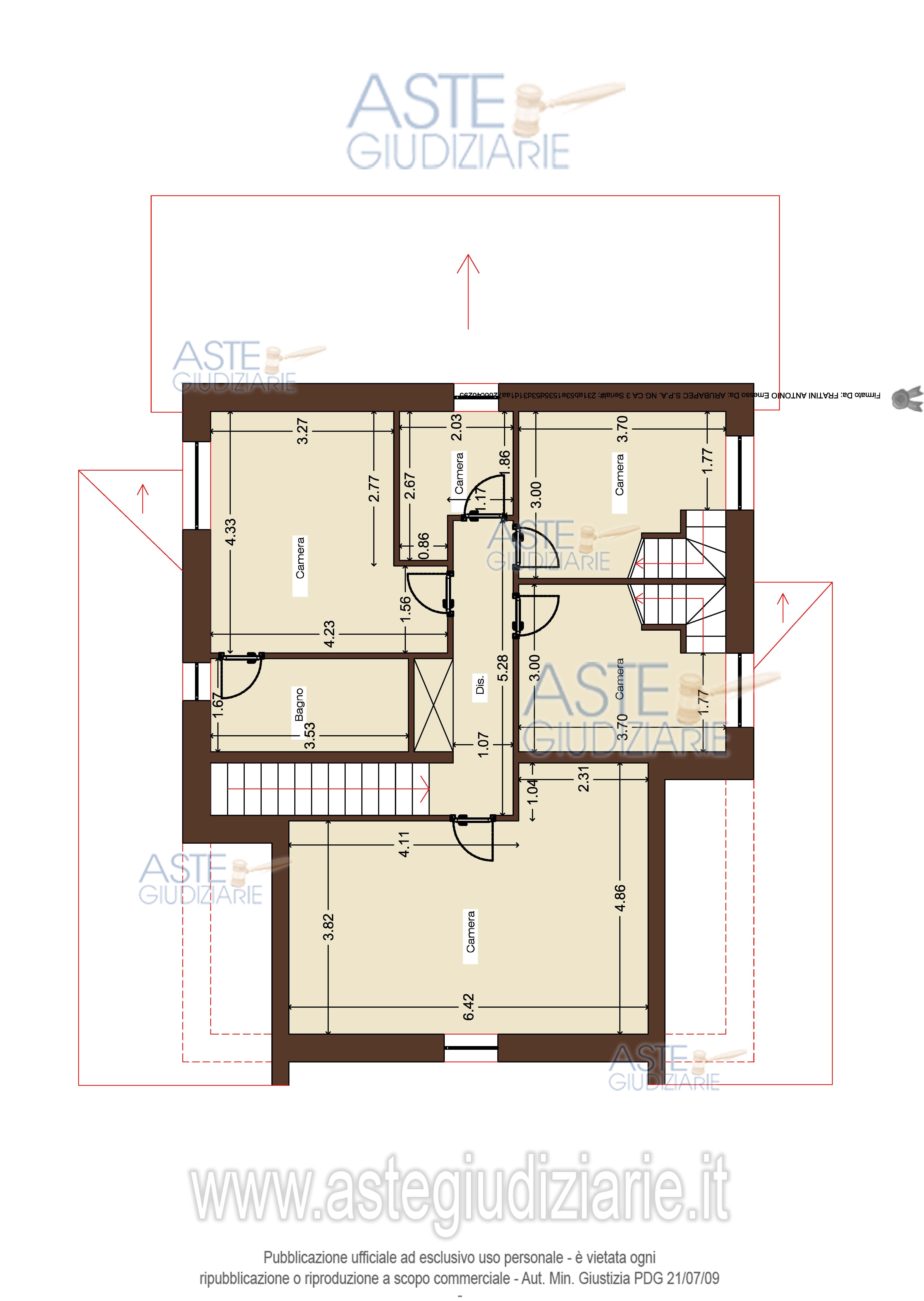
Vendita all'asta Senza incanto, con gara telematica asincrona - LOTTO UNICO: 1. Abitazione articolata su quattro livelli collegati da una scala interna, n. interno 1, posta al piano seminterrato, terra, primo e secondo. Superficie 214,59 mq; 2. Villetta posta al piano terra, n. interno 2, composta da soggiorno/pranzo con angolo cottura, disimpegno, un bagno, una camera da letto, un portico ed un balcone. Superficie 51,66 mq; 3. Garage posto al piano S1, n. interno 1. Superficie 44,29 mq; 4. Garage posto al piano S1, n. int. 1. Superficie 14,02 mq; 5. Corte esclusiva di 2760,00 mq. Prezzo base € 285.705,00 (offerta minima € 214.278,75). Data inizio operazioni di vendita: 12/01/2026 ore 12:00. Giudice Dott. Marco Piovano. Professionista delegato alla vendita Avv. Marco Marchionni - Email "marco@studiolegalemarchionni.com"; Tel. 0688932960. Custode Giudiziario Ivg Di Roma Srl - Email "pvp@visiteivgroma.it"; Tel. 0689569801. Rif. Tribunale di Tivoli - Espropriazione immobiliare (cartabia) n. 404/2023

Superficie mq
Vani
Bagni
Piano 0

Tipologia di vendita Giudiziaria
Modalità di vendita Asincrona telematica
Termine presentazione offerte 11/01/2026 ore 23:59
Data e ora inizio gara 12/01/2026 ore 12:00
Codice ID astegiudiziarie.it 4331396
0
€ 285.705

Ti interessa questa vendita?

north_east

Clicca qui per essere indirizzato alla scheda sul sito di provenienza

Bene di astegiudiziarie.it