highlight_off
Riferimento annuncio 260659 info

Villino San Leonardo Valcellina, Via del Bosco, 18, 33086 Montereale Valcellina (PN)

0
€ 205.281
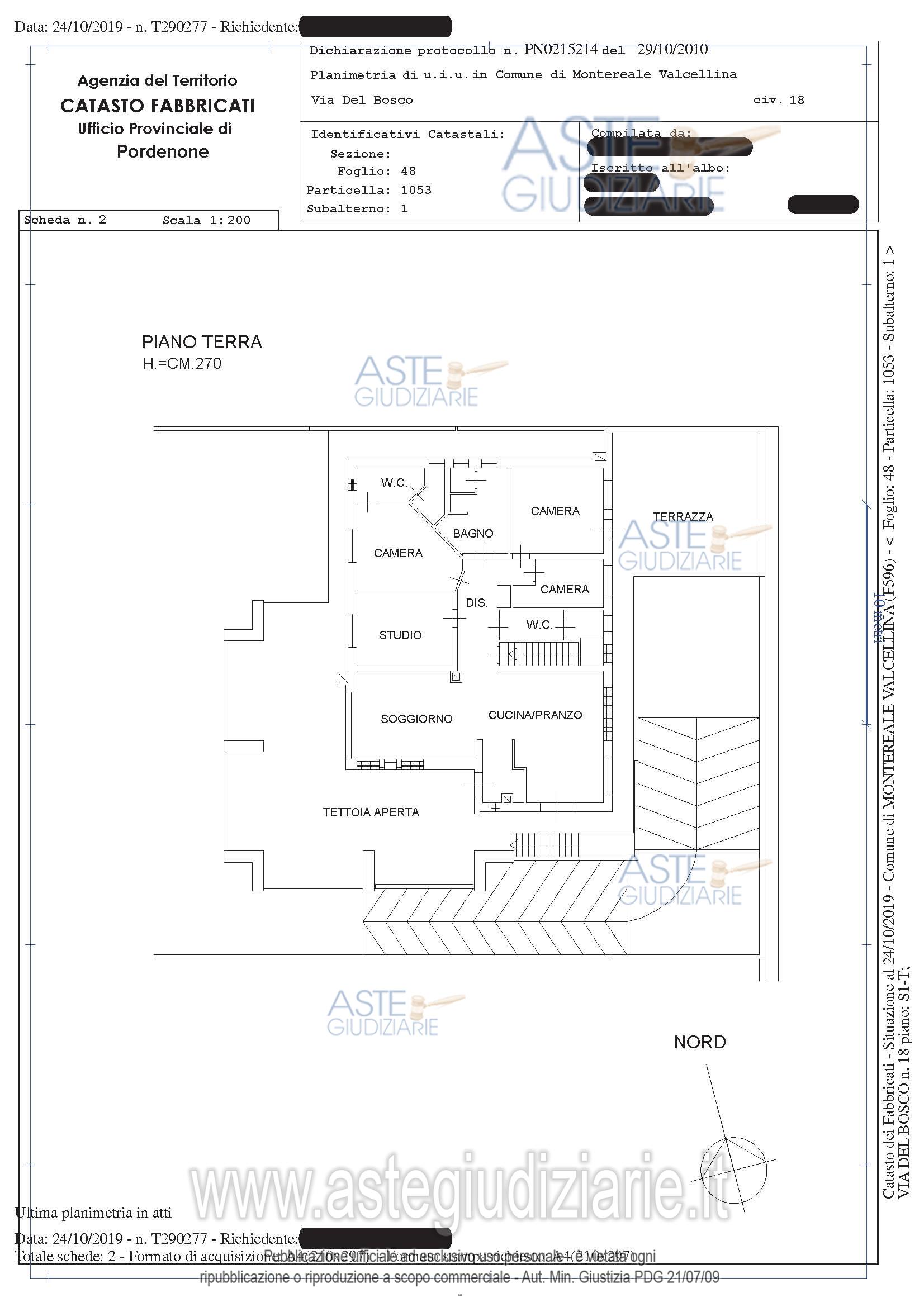
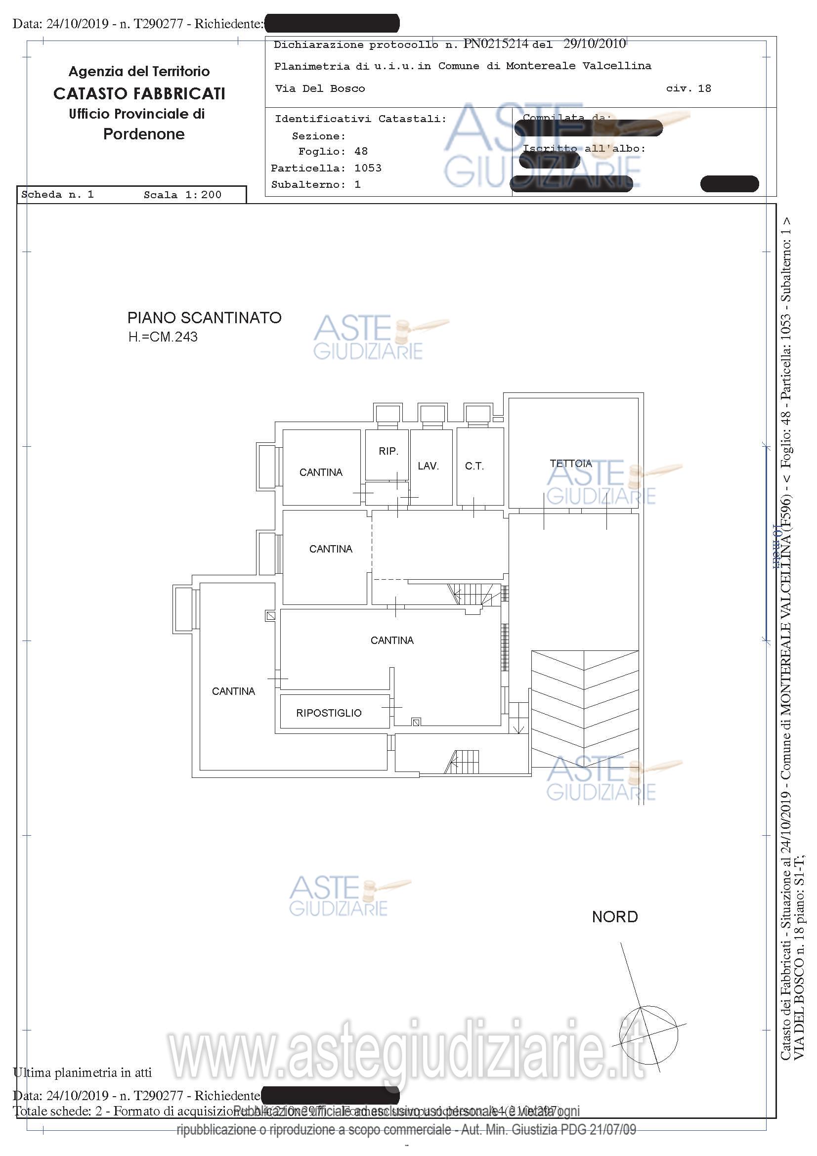
Vendita all'asta Senza incanto, con gara telematica sincrona mista - LOTTO UNICO: Villetta singola, al piano terra costituita da un soggiorno con adiacente sala cucina/pranzo e ingresso, disimpegno che dà accesso ad uno studio, 2 camere da letto, un ripostiglio e 2 bagni, ed ulteriore bagno con accesso esclusivo dalla camera più grande. Al piano interrato ci sono: locali accessori, 4 cantine, 2 ripostigli, autorimessa, lavanderia, centrale termica e tettoia. Corte di pertinenza. Occupato. Difformità catastali ed edilizie sanabili. Prezzo base € 205.280,95 (offerta minima € 153.961,00). Data vendita 14/11/2025 ore 15:00. Giudice Dott. Elisa Tesco. Professionista delegato alla vendita Not. Giorgio Pertegato - Email "notaio@notaiopertegato.it". Custode Giudiziario Ass. Not. Custode Giudiziario - Email "custodi@associazionenotarile.pn.it"; Tel. 3294536349. Rif. Tribunale di Pordenone - Esecuzione immobiliare post legge 80 n. 142/2018

Superficie mq
Vani
Bagni
Piano 0

Tipologia di vendita Giudiziaria
Modalità di vendita Sincrona mista
Termine presentazione offerte 01/01/1900 ore 00:00
Data e ora inizio gara 14/11/2025 ore 15:00
Codice ID astegiudiziarie.it 4294620
0
€ 205.281

Ti interessa questa vendita?

north_east

Clicca qui per essere indirizzato alla scheda sul sito di provenienza

Bene di astegiudiziarie.it