highlight_off
Riferimento annuncio 330651 info

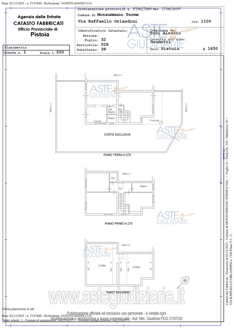
Villino Via R. Orlandini, 1100, 51015 Monsummano Terme PT, Italia, 51015 Monsummano Terme (PT)

9,00
185,00
3
0
€ 215.500
Vendita all'asta Senza incanto, con gara telematica asincrona - LOTTO UNICO: Villetta per civile abitazione con resede esclusivo su tre lati e piscina interrata allo stato grezzo. Prezzo base € 215.500,00 (offerta minima € 161.625,00). Data inizio operazioni di vendita: 15/07/2026 ore 09:30. Professionista delegato alla vendita: Avv. Manuela Bigagli - Email "avv.manuelabigagli@gmail.com". Custode Giudiziario: - Isveg - Email "prenota.pt@isveg.it". Rif. Tribunale di Pistoia - Espropriazione immobiliare (cartabia) n. 136/2025

Superficie 185,00 mq
Vani 9,00
Bagni 3
Piano 0

Tipologia di vendita Giudiziaria
Modalità di vendita Asincrona telematica
Termine presentazione offerte 14/07/2026 ore 12:00
Data e ora inizio gara 15/07/2026 ore 09:30
Codice ID astegiudiziarie.it 4347648
9,00
185,00
3
0
€ 215.500

Ti interessa questa vendita?

north_east

Clicca qui per essere indirizzato alla scheda sul sito di provenienza

Bene di astegiudiziarie.it