highlight_off
Riferimento annuncio 327896 info

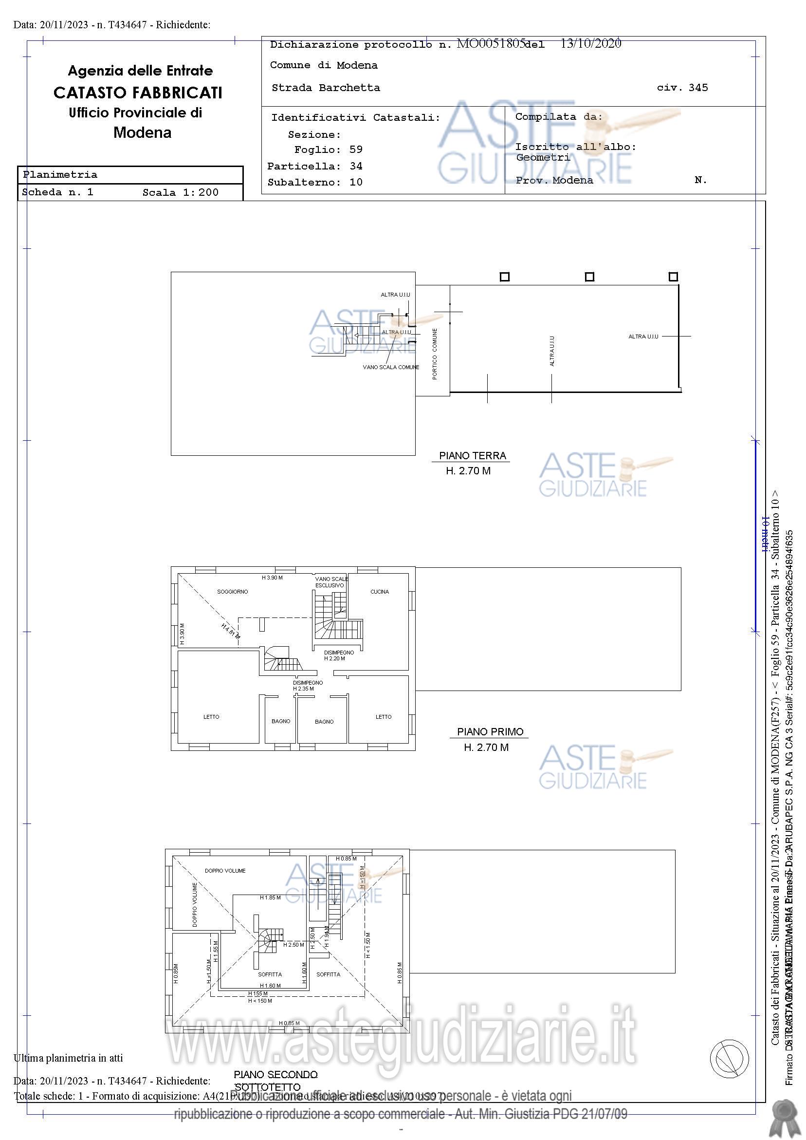
Villino Strada Barchetta n. 345, 41100 Modena (MO)

13,00
579,61
2
0
€ 731.250
Vendita all'asta Senza incanto, con gara telematica asincrona - LOTTO UNICO: Piena ed esclusiva proprietà di villa bifamiliare con ampio parco e piscina, due autorimesse e dependance. Prezzo base € 731.250,00 (offerta minima € 548.437,50). Data inizio operazioni di vendita: 28/04/2026 ore 11:00. Professionista delegato alla vendita Avv. Silvia Odorici - Email "silvia.odorici@libero.it"; Cell. 338/6481534. Custode Giudiziario Alex Manelli - Email "visiteimmobili@ivgmodena.it"; Tel. 059/847301. Rif. Tribunale di Modena - Esecuzione immobiliare post legge 80 n. 236/2022

Superficie 579,61 mq
Vani 13,00
Bagni 2
Piano 0

Tipologia di vendita Giudiziaria
Modalità di vendita Asincrona telematica
Termine presentazione offerte 01/01/1900 ore 00:00
Data e ora inizio gara 28/04/2026 ore 11:00
Codice ID astegiudiziarie.it 4346297
13,00
579,61
2
0
€ 731.250

Ti interessa questa vendita?

north_east

Clicca qui per essere indirizzato alla scheda sul sito di provenienza

Bene di astegiudiziarie.it