highlight_off
Riferimento annuncio 287120 info

Villino Via Reatina, 02020 Longone Sabino (RI)

10,00
233,00
0
€ 59.017
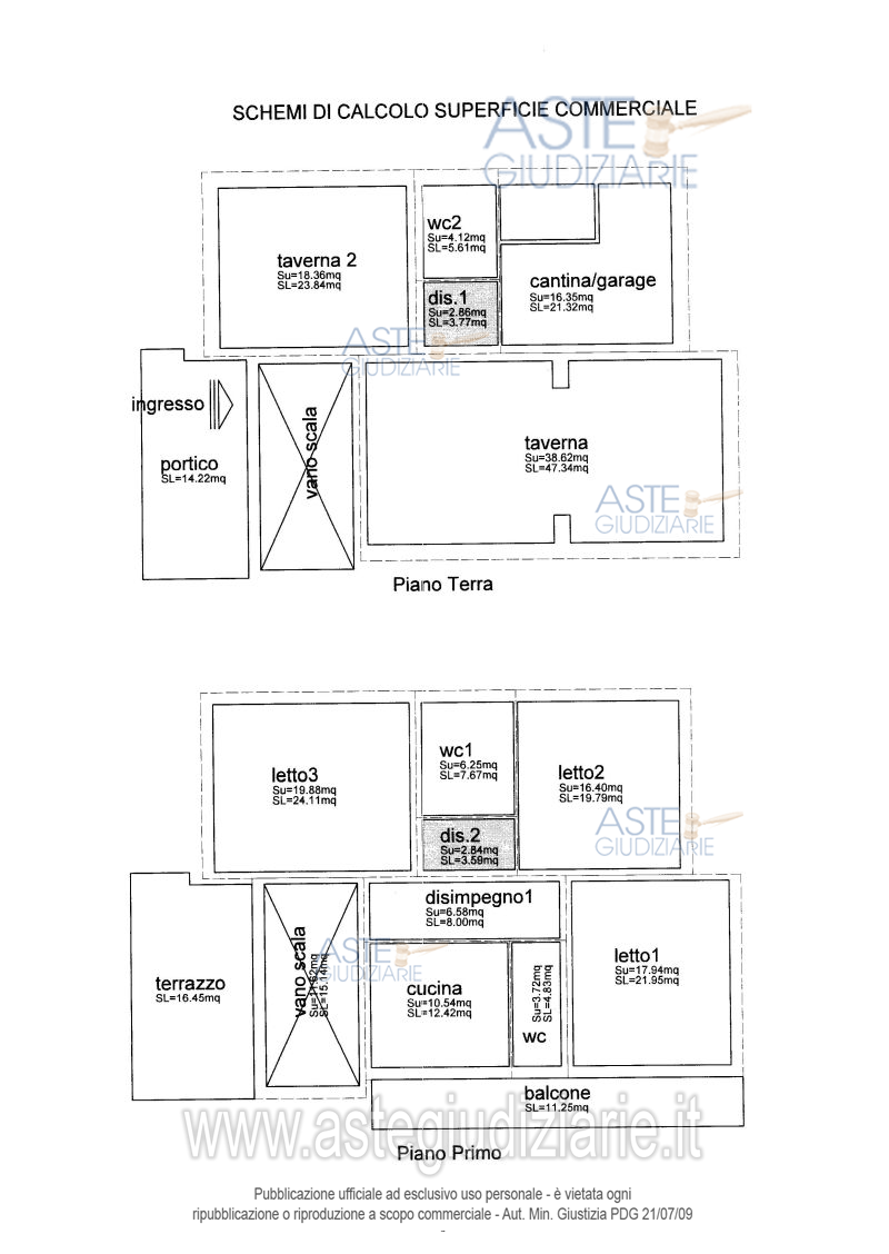
Vendita all'asta Senza incanto, con gara telematica asincrona - LOTTO 0: Edificio residenziale cielo terra costituito da due piani serviti da una scala interna a doppia rampa, della superficie totale di 233 mq, di cui 203 mq escluse aree scoperte, con area pertinenziale intorno al fabbricato di circa 1257 mq di cui disponibile circa 1157 mq. Prezzo base € 59.017,25 (offerta minima € 44.262,94). Data inizio operazioni di vendita: 02/03/2026 ore 09:20. Giudice Dott. Barbara Vicario. Professionista delegato alla vendita Avv. Mario Petrucci - Email "avvmariopetrucci@gmail.com"; Tel. 0746205692. Custode Giudiziario Avv. Mario Petrucci - Email "avvmariopetrucci@gmail.com"; Tel. 0746205692. Rif. Tribunale di Rieti - Esecuzione immobiliare post legge 80 n. 143/2023

Superficie 233,00 mq
Vani 10,00
Bagni
Piano 0

Tipologia di vendita Giudiziaria
Modalità di vendita Asincrona telematica
Termine presentazione offerte 27/02/2026 ore 12:00
Data e ora inizio gara 02/03/2026 ore 09:20
Codice ID astegiudiziarie.it 4313914
10,00
233,00
0
€ 59.017

Ti interessa questa vendita?

north_east

Clicca qui per essere indirizzato alla scheda sul sito di provenienza

Bene di astegiudiziarie.it