highlight_off
Riferimento annuncio 322643 info

Villino Strada Nascosa n. 5424, 04100 Latina (LT)

51,00
2114,34
0
€ 221.152
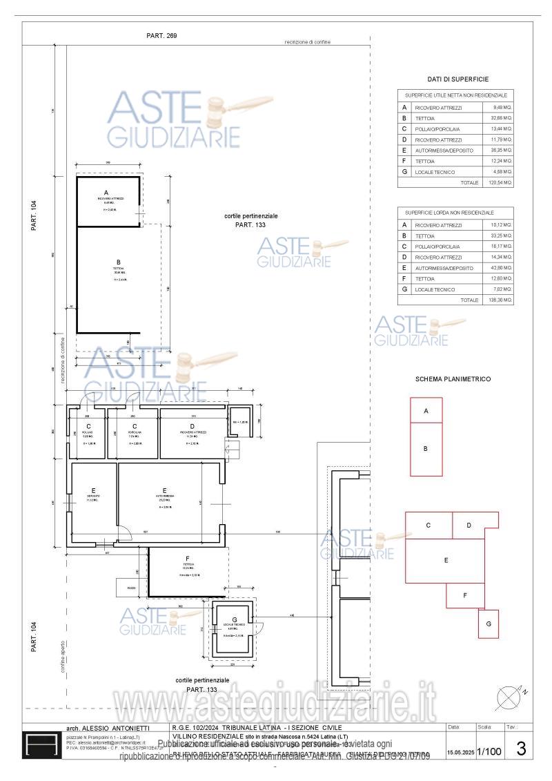
Vendita all'asta Senza incanto, con gara telematica asincrona - LOTTO UNICO: - Bene n. 1 - Villetta ubicata a Latina (LT) - Strada Nascosa n. 5424. La villetta è situata nella zona periferica SUD del Comune di Latina, si sviluppa su un unico livello al piano terra e si compone dei seguenti locali abitativi: soggiorno-pranzo, cucina-tinello, n. 2 camere da letto, bagno e disimpegno, oltre a n. 2 terrazze ed un ampio cortile pertinenziale.- Bene n. 2 - Terreno ubicato a Latina (LT) - Strada Nascosa n. 5424. Prezzo base € 221.152,01 (offerta minima € 165.864,01). Data inizio operazioni di vendita: 24/02/2026 ore 15:00. Professionista delegato alla vendita Avv. Tonino Centra - Email "avv.toninocentra@gmail.com"; Cell. 3929899638; Tel. 07731718130. Custode Giudiziario Avv. Tonino Centra - Email "avv.toninocentra@gmail.com"; Cell. 3929899638; Tel. 07731718130. Rif. Tribunale di Latina - Espropriazione immobiliare (cartabia) n. 102/2024

Superficie 2114,34 mq
Vani 51,00
Bagni
Piano 0

Tipologia di vendita Giudiziaria
Modalità di vendita Asincrona telematica
Termine presentazione offerte 23/02/2026 ore 15:00
Data e ora inizio gara 24/02/2026 ore 15:00
Codice ID astegiudiziarie.it 4341241
51,00
2114,34
0
€ 221.152

Ti interessa questa vendita?

north_east

Clicca qui per essere indirizzato alla scheda sul sito di provenienza

Bene di astegiudiziarie.it