highlight_off
Riferimento annuncio 314600 info

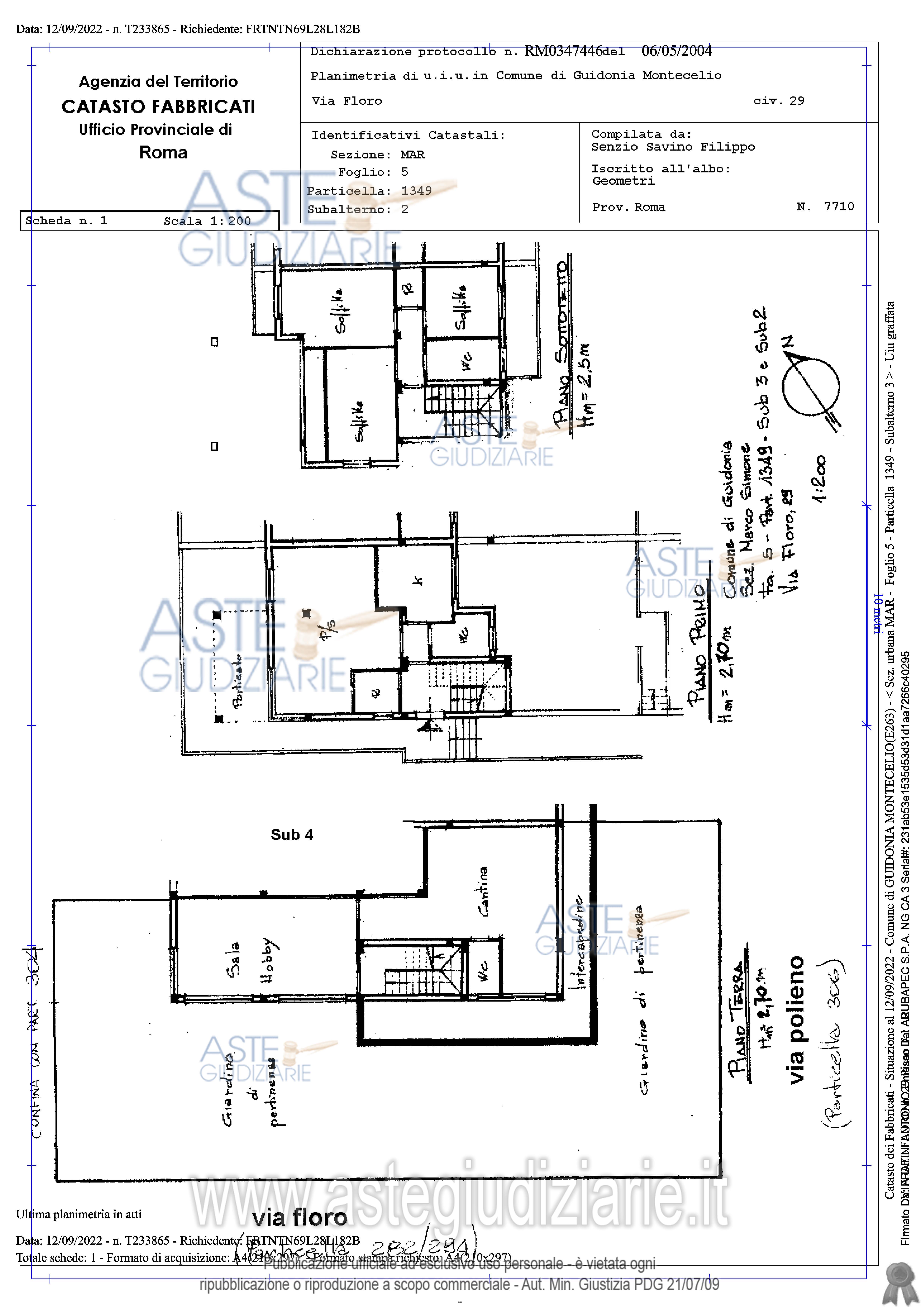
Villino Via Floro, 29, 00012 Laghetto RM, Italia, 00012 Guidonia Montecelio (RM)

0
€ 270.675
Vendita all'asta Senza incanto, con gara telematica asincrona - LOTTO UNICO: Villino di civile abitazione su tre piani avente accesso dal civico n. 29 di Via Floro. Prezzo base € 270.675,00 (offerta minima € 203.006,25). Data inizio operazioni di vendita: 02/12/2025 ore 15:00. Professionista delegato alla vendita Avv. Adriana Iasciotti - Email "avv.adrianaiasciotti@gmail.com". Custode Giudiziario Ivg Di Roma Srl - Email "pvp@visiteivgroma.it". Rif. Tribunale di Tivoli - Contenzioso civile n. 2186/2024

Superficie mq
Vani
Bagni
Piano 0

Tipologia di vendita Giudiziaria
Modalità di vendita Asincrona telematica
Termine presentazione offerte 01/12/2025 ore 23:59
Data e ora inizio gara 02/12/2025 ore 15:00
Codice ID astegiudiziarie.it 4335788
0
€ 270.675

Ti interessa questa vendita?

north_east

Clicca qui per essere indirizzato alla scheda sul sito di provenienza

Bene di astegiudiziarie.it