highlight_off
Riferimento annuncio 279279 info

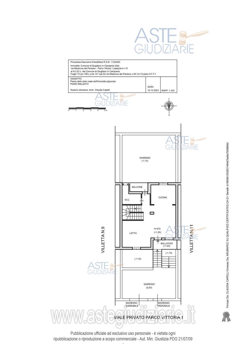
Villino Via Madonna del Pantano, Parco Vittoria 1, Palazzina n.10, 80014 Giugliano in Campania (NA)

8,50
150,88
0
€ 172.551
Vendita all'asta Senza incanto, con gara telematica asincrona - LOTTO UNICO: Villetta unifamiliare, Parco Vittoria 1, su tre livelli, collegati da scala interna, oltre spazio esterno pertinenza esclusiva: piano seminterrato (soggiorno con angolo cottura, bagno, giardino sul retro), piano rialzato (soggiorno con angolo cottura, bagno e balcone, oltre ballatoio di accesso) e primo piano (3 camere da letto, bagno e balcone). Prezzo base € 172.551,00 (offerta minima € 129.413,25). Data inizio operazioni di vendita: 24/03/2026 ore 15:00. Professionista delegato alla vendita Avv. Pasquale Borrelli - Email "avvborrelli@yahoo.it"; Tel. 0815521624. Custode Giudiziario Avv. Pasquale Borrelli - Email "avvborrelli@yahoo.it"; Tel. 0815521624. Rif. Tribunale di Napoli Nord - Espropriazione immobiliare (cartabia) n. 115/2023

Superficie 150,88 mq
Vani 8,50
Bagni
Piano 0

Tipologia di vendita Giudiziaria
Modalità di vendita Asincrona telematica
Termine presentazione offerte 01/01/1900 ore 00:00
Data e ora inizio gara 24/03/2026 ore 15:00
Codice ID astegiudiziarie.it 4307808
8,50
150,88
0
€ 172.551

Ti interessa questa vendita?

north_east

Clicca qui per essere indirizzato alla scheda sul sito di provenienza

Bene di astegiudiziarie.it