highlight_off
Riferimento annuncio 297918 info

Villino Via delle Camelie, 1, 09041 Dolianova SU, Italia, 09041 Dolianova (SU)

8,50
365,59
0
€ 228.152
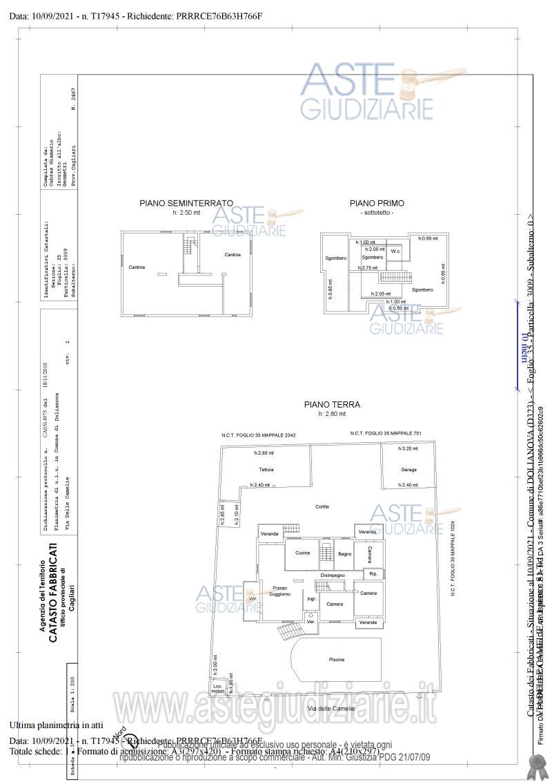
Vendita all'asta Senza incanto, con gara telematica asincrona - LOTTO UNICO: Piena proprietà fabb. ad uso residenziale Comune Dolianova (SU), Via Delle Camelie 1, piani S1–T-1. NCEU: F.35,M.3009,Cat. A/7, 8,5 vani,sup.cat.203 mq,sup.comm.365,59 mq. circa. All’esterno:ampia area cortilizia di pertinenza esclusiva con posto auto coperto,loggiato con forno e barbeque,e piscina con annesso locale pompe. Realizzato su lotto NCT F. 35,M.411 e 1023, (soppresso), attualmente NCT F. 35,M.3009, ente urbano di 7 are e 33 centiare. Prezzo base € 228.151,90 (offerta minima € 171.114,00). Data inizio operazioni di vendita: 13/01/2026 ore 17:00. Giudice Dott. Valentina Frongia. Professionista delegato alla vendita Avv. Monica Francesca Nieddu - Email "avv.monicafrancescanieddu@gmail.com"; Cell. 3287029785; Tel. 079239901. Custode Giudiziario Istituto Vendite Giudiziarie Cagliari - Email "ivg.visiteimmobili@tiscali.it"; Tel. 0702299036. Rif. Tribunale di Cagliari - Contenzioso civile n. 3014/2024

Superficie 365,59 mq
Vani 8,50
Bagni
Piano 0

Tipologia di vendita Giudiziaria
Modalità di vendita Asincrona telematica
Termine presentazione offerte 01/01/1900 ore 00:00
Data e ora inizio gara 13/01/2026 ore 17:00
Codice ID astegiudiziarie.it 4322156
8,50
365,59
0
€ 228.152

Ti interessa questa vendita?

north_east

Clicca qui per essere indirizzato alla scheda sul sito di provenienza

Bene di astegiudiziarie.it