Riferimento annuncio 314948
        
    
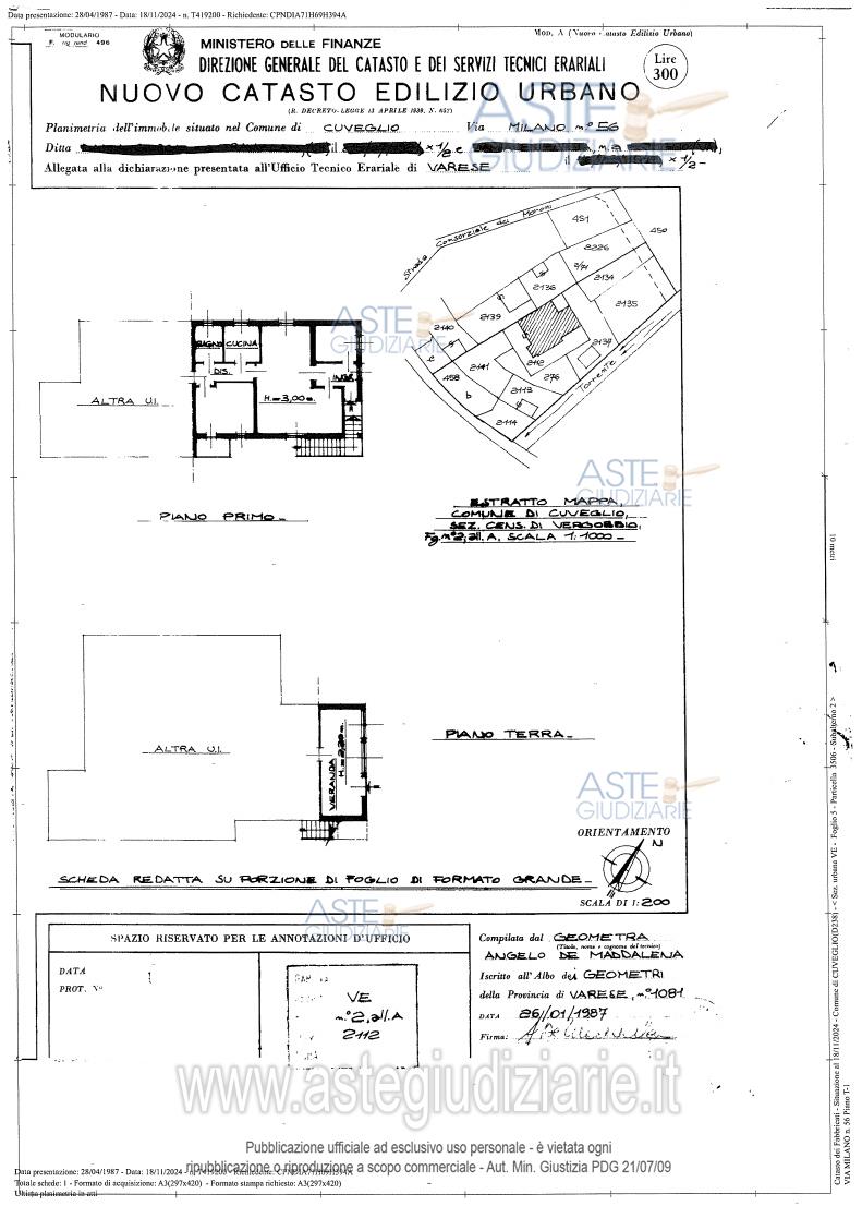
    Villino Via Milano n. 56, 21030 Cuveglio (VA)
                
                5,50
            
            
                
                118,00
            
            
                
                0
            
        
€ 58.000    
                Vendita all'asta Senza incanto, con gara telematica sincrona mista - LOTTO UNICO:  Unità immobiliare disposta su due livelli; al piano terra si trova l'ingresso con le scale per accedere al primo piano, mentre al primo piano è allocato un ampio appartamento da ristrutturare interamente, con accesso indipendente, oltre a parti comuni. Prezzo base € 58.000,00 (offerta minima € 43.500,00). Data vendita 18/11/2025 ore 16:00. Giudice Dott. Flaminia D'angelo. Professionista delegato alla vendita Avv. Carlo Maria Prevosti - Email "cm.prevosti@studiovagaggini.it"; Tel. 0332283516. Custode Giudiziario  G.I.V.G. Srl  - Istituto Vendite Giudiziarie Vares - Email "visite.va@givg.it;segreteria.va@givg.it"; Tel. 0332335510.  Rif. Tribunale di Varese - Esecuzione immobiliare n. 167/2024
            
   
| Superficie | 118,00 mq | 
|---|---|
| Vani | 5,50 | 
| Bagni | |
| Piano | 0 | 
| Tipologia di vendita | Giudiziaria | 
|---|---|
| Modalità di vendita | Sincrona mista | 
| Termine presentazione offerte | 01/01/1900 ore 00:00 | 
| Data e ora inizio gara | 18/11/2025 ore 16:00 |