highlight_off
Riferimento annuncio 296554 info

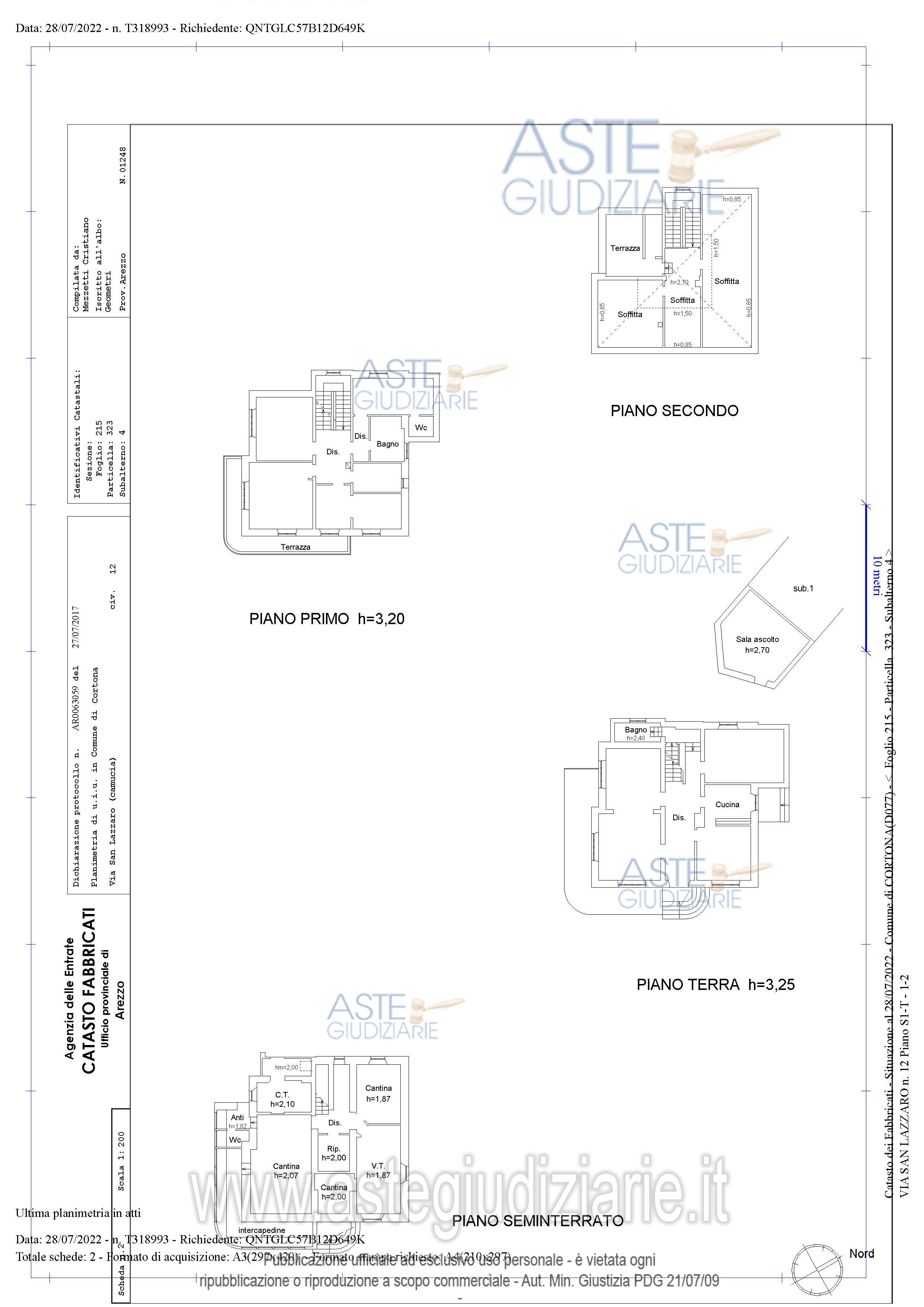
Villino Via S. Lazzaro, 12/4, 52044 Camucia AR, Italia, 52044 Cortona (AR)

15,00
508,25
0
€ 306.176
Vendita all'asta Senza incanto, con gara telematica sincrona mista - LOTTO 1: Fabbricato indipendente ubicato all’interno di un’area completamente recintata, con duplice accesso (carrabile e pedonale), articolato su più livelli (piani seminterrato, terreno, primo e secondo/sottotetto), fra loro collegati tramite scala interna. Prezzo base € 306.176,00 (offerta minima € 229.632,00). Data vendita 03/02/2026 ore 09:30. Giudice Dott. Elisabetta Rodinò Di Miglione. Professionista delegato alla vendita Not. Andrea Gambacorta - Email "notares@notares.eu"; Tel. 0575741572. Custode Giudiziario Istituto Vendite Giudiziarie Arezzo - Siena - Email "visite.ivg@gmail.com"; Cell. 3397337017; Tel. 0577318111. Rif. Tribunale di Arezzo - Esecuzione immobiliare post legge 80 n. 153/2021

Superficie 508,25 mq
Vani 15,00
Bagni
Piano 0

Tipologia di vendita Giudiziaria
Modalità di vendita Sincrona mista
Termine presentazione offerte 02/02/2026 ore 13:00
Data e ora inizio gara 03/02/2026 ore 09:30
Codice ID astegiudiziarie.it 4321013
15,00
508,25
0
€ 306.176

Ti interessa questa vendita?

north_east

Clicca qui per essere indirizzato alla scheda sul sito di provenienza

Bene di astegiudiziarie.it