highlight_off
Riferimento annuncio 323356 info

Villino Via del Marmigliaio, 3, 57014 Collesalvetti LI, Italia, 57014 Collesalvetti (LI)

80,00
390,00
0
€ 749.025
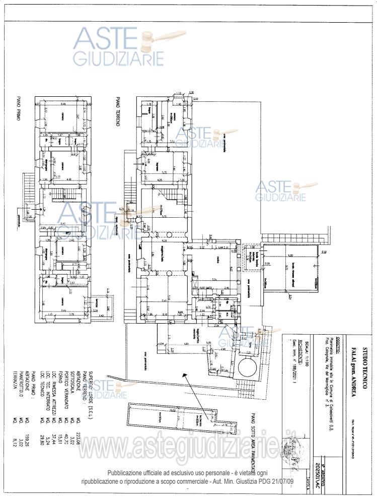
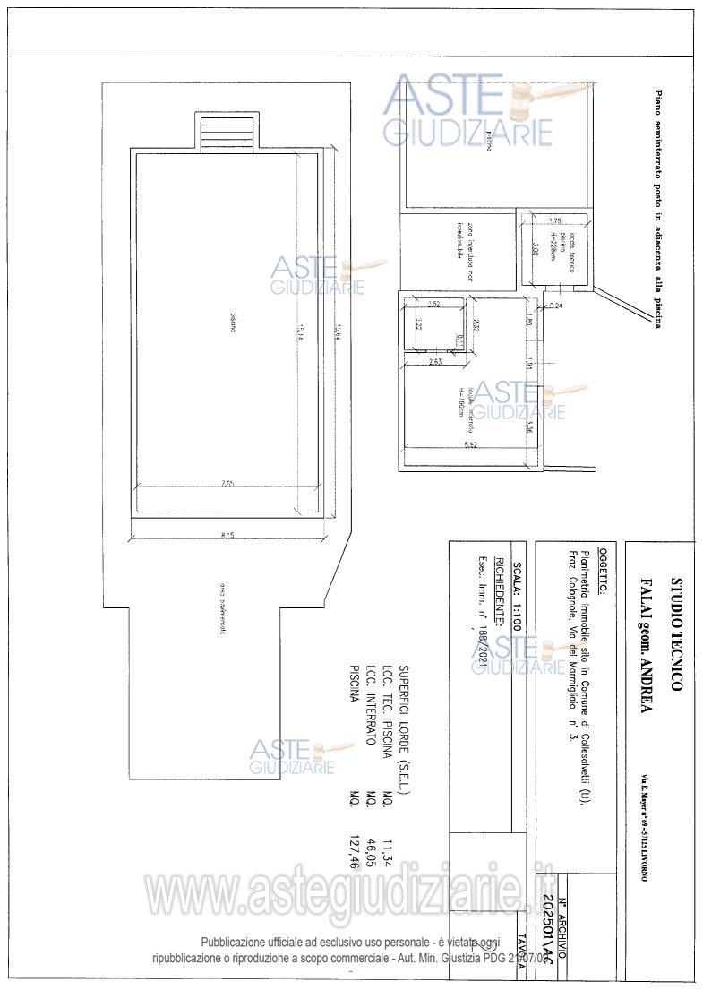
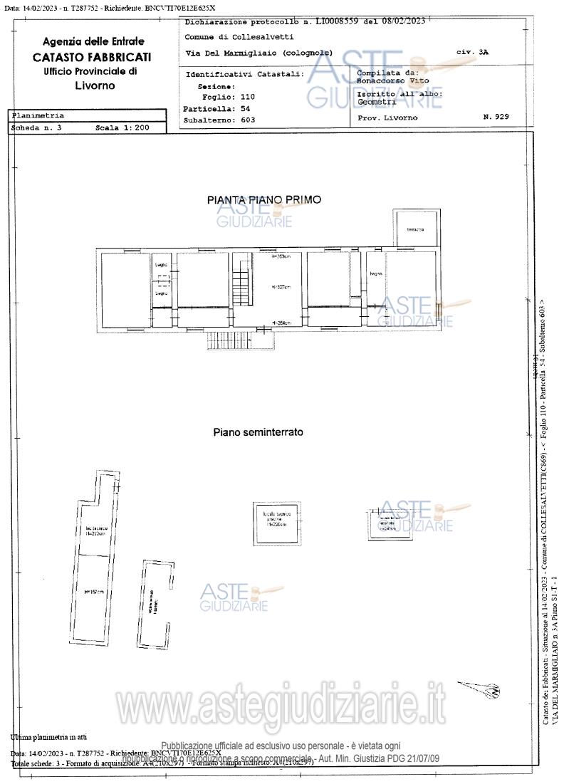
Vendita all'asta Senza incanto, con gara telematica asincrona - LOTTO UNICO: Piena proprietà di fabbricato unifamiliare terratetto ubicato in Collesalvetti (LI), Frazione Colognole, Località Belvedere, Via del Marmigliaio n. 3 (anche indicato come n. 3/a), con corte esclusiva, accessori ed annessi appezzamenti di terreno della superficie di circa mq. 17.440,00. Prezzo base € 749.025,00 (offerta minima € 561.768,75). Data inizio operazioni di vendita: 02/07/2026 ore 15:30. Giudice: Dott. Elisa Pinna. Professionista delegato alla vendita: Avv. Piergiovanni Razzauti - Email "avv.razzauti91@gmail.com"; Tel. 0586/893281. Custode Giudiziario: Avv. Clara Porcari - Email "claraporcari@alice.it"; Tel. 0586/892315. Rif. Tribunale di Livorno - Esecuzione immobiliare post legge 80 n. 188/2021

Superficie 390,00 mq
Vani 80,00
Bagni
Piano 0

Tipologia di vendita Giudiziaria
Modalità di vendita Asincrona telematica
Termine presentazione offerte 01/07/2026 ore 12:00
Data e ora inizio gara 02/07/2026 ore 15:30
Codice ID astegiudiziarie.it 4342857
80,00
390,00
0
€ 749.025

Ti interessa questa vendita?

north_east

Clicca qui per essere indirizzato alla scheda sul sito di provenienza

Bene di astegiudiziarie.it