highlight_off
Riferimento annuncio 316709 info

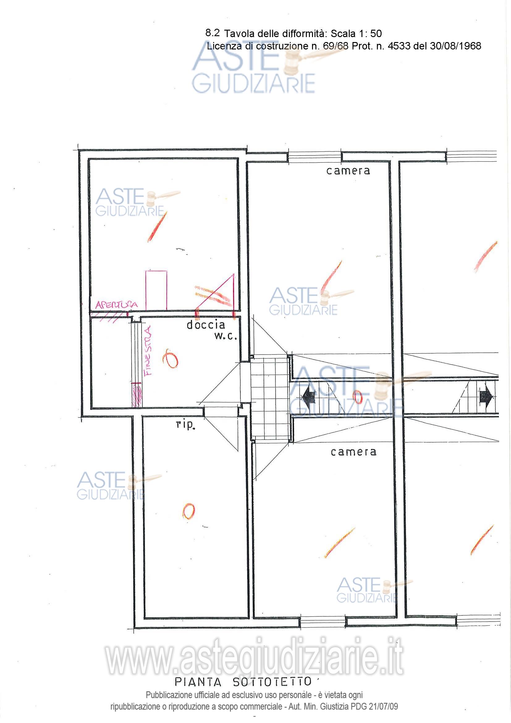
Villino Via del Santuario, 2, 41014 Castelvetro di Modena MO, Italia, 41014 Castelvetro di Modena (MO)

7,00
124,00
0
€ 138.750
Vendita all'asta Senza incanto, con gara telematica asincrona - LOTTO UNICO: Piena proprietà di porzione di fabbricato ubicata nel Comune di Castelvetro di Modena (MO), frazione di Puianello, Via Del Santuario n.2/C. L'unità immobiliare ad uso civile abitazione è disposta su Piani Terra e Primo ed ha annessa area cortiliva senza precisa individuazione e delimitazione dei confini. Prezzo base € 138.750,00 (offerta minima € 104.063,00). Data inizio operazioni di vendita: 16/04/2026 ore 12:00. Professionista delegato alla vendita Avv. Dario Crepaldi - Email "info@studiolegalecrepaldi.it"; Tel. 059219520. Custode Giudiziario Alex Manelli - Email "visiteimmobili@ivgmodena.it"; Tel. 059847301. Rif. Tribunale di Modena - Esecuzione immobiliare post legge 80 n. 96/2023

Superficie 124,00 mq
Vani 7,00
Bagni
Piano 0

Tipologia di vendita Giudiziaria
Modalità di vendita Asincrona telematica
Termine presentazione offerte 01/01/1900 ore 00:00
Data e ora inizio gara 16/04/2026 ore 12:00
Codice ID astegiudiziarie.it 4337407
7,00
124,00
0
€ 138.750

Ti interessa questa vendita?

north_east

Clicca qui per essere indirizzato alla scheda sul sito di provenienza

Bene di astegiudiziarie.it