highlight_off
Riferimento annuncio 313025 info

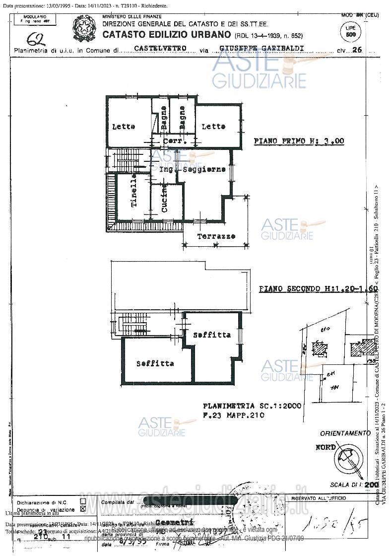
Villino Via Giuseppe Garibaldi, 26, 41014 Castelvetro di Modena MO, Italia, 41014 Castelvetro di Modena (MO)

197,00
0
€ 125.000
Vendita all'asta Senza incanto, con gara telematica asincrona - LOTTO UNICO: Piena proprietà su porzione immobiliare ad uso civile abitazione sita in Comune di Castelvetro di Modena (MO), Via Giuseppe Garibaldi n. 26, costituita da appartamento posto al piano primo di edificio singolo, oltre ai proporzionali diritti di comproprietà sulle parti comuni con altre unità immobiliari. Prezzo base € 125.000,00 (offerta minima € 93.750,00). Data inizio operazioni di vendita: 13/01/2026 ore 10:00. Professionista delegato alla vendita Avv. Marco Bigi - Email "avv.marcobigi@virgilio.it"; Cell. 3473583489; Tel. 059332231. Custode Giudiziario Alex Manelli - Email "visiteimmobili@ivgmodena.it"; Tel. 059847301. Rif. Tribunale di Modena - Esecuzione immobiliare post legge 80 n. 128/2022

Superficie 197,00 mq
Vani
Bagni
Piano 0

Tipologia di vendita Giudiziaria
Modalità di vendita Asincrona telematica
Termine presentazione offerte 01/01/1900 ore 00:00
Data e ora inizio gara 13/01/2026 ore 10:00
Codice ID astegiudiziarie.it 4334234
197,00
0
€ 125.000

Ti interessa questa vendita?

north_east

Clicca qui per essere indirizzato alla scheda sul sito di provenienza

Bene di astegiudiziarie.it