highlight_off
Riferimento annuncio 311730 info

Villino Via Avvocato Sebastiano Filipello, 12, 14022 Castelnuovo Don Bosco AT, Italia, 14022 Castelnuovo Don Bosco (AT)

6,50
222,30
0
€ 216.000
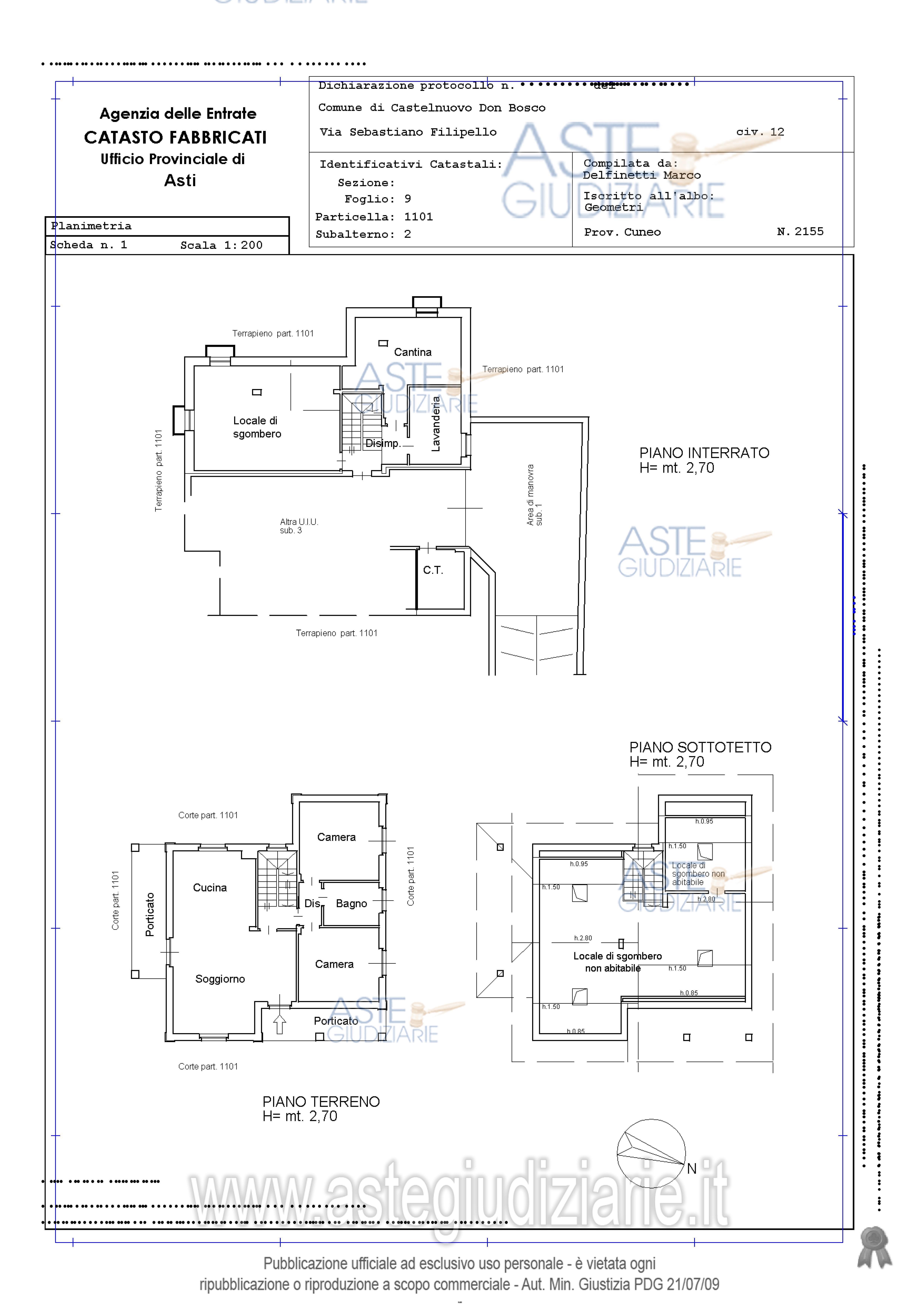
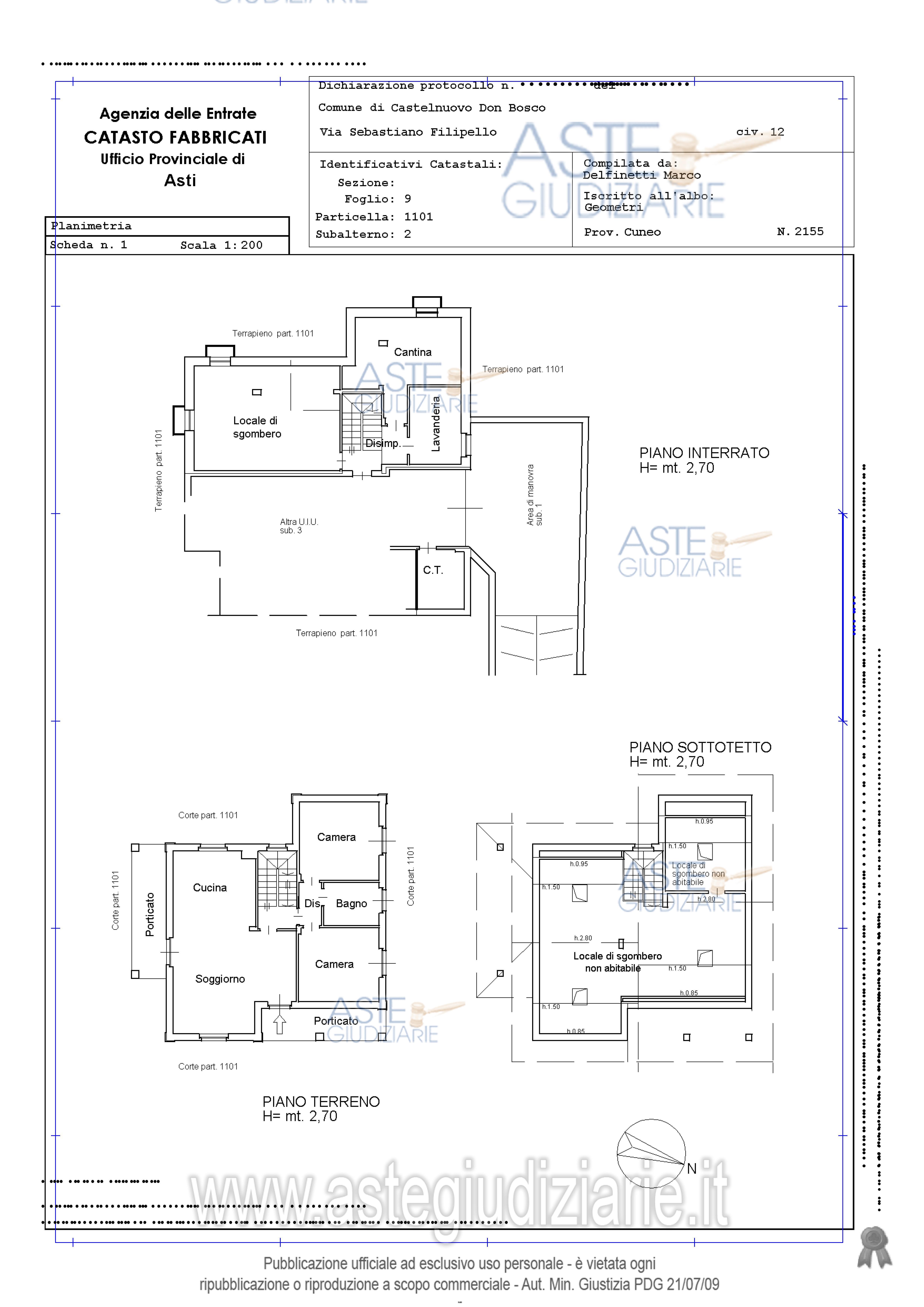
Vendita all'asta Senza incanto, con gara telematica asincrona - LOTTO UNICO: Villetta ad uso civile abitazione, composta da ampia autorimessa, locale tecnico, lavanderia, cantina e due locali di sgombero al piano interrato; appartamento di soggiorno-cucina, due camere e bagno al piano terreno e due locali disgombero non abitabili al piano sottotetto. Prezzo base € 216.000,00 (offerta minima € 162.000,00). Data inizio operazioni di vendita: 29/04/2026 ore 10:30. Giudice Dott. Paola Amisano. Professionista delegato alla vendita Dott. Giovanni M. Sibona - Email "sibonagm@open.legalmail.it"; Tel. 0173551360. Custode Giudiziario Ifir Piemonte Ivg Srl - Email "richiestevisite.asti@ivgpiemonte.it"; Cell. 3664299971; Tel. 0114731714. Rif. Tribunale di Asti - Espropriazione immobiliare (cartabia) n. 187/2023

Superficie 222,30 mq
Vani 6,50
Bagni
Piano 0

Tipologia di vendita Giudiziaria
Modalità di vendita Asincrona telematica
Termine presentazione offerte 28/04/2026 ore 12:00
Data e ora inizio gara 29/04/2026 ore 10:30
Codice ID astegiudiziarie.it 4333251
6,50
222,30
0
€ 216.000

Ti interessa questa vendita?

north_east

Clicca qui per essere indirizzato alla scheda sul sito di provenienza

Bene di astegiudiziarie.it