highlight_off
Riferimento annuncio 291463 info

Villino frazione di Vadue, Via Sardegna, 87030 Carolei (CS)

0
€ 156.023
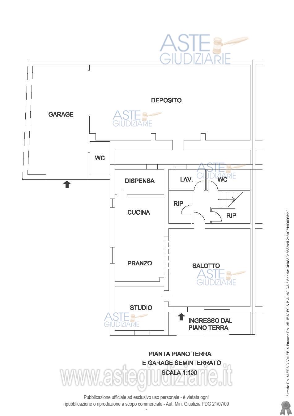
Vendita all'asta Senza incanto, con gara telematica sincrona mista - LOTTO UNICO: Porzione di villa bifamiliare ella superficie commerciale complessiva di mq. 393,20 circa, composta da: ingresso posto sotto un piccolo portico, studio, salotto con camino, cucina-pranzo con annessa dispensa, due ripostigli, lavanderia e bagno al piano terra; salotto con camino, cucina-pranzo con terrazzo, studio e bagno al primo piano e tre stanze da letto ed un bagno al secondo piano, oltre garage. Prezzo base € 156.023,00 (offerta minima € 117.018,00). Data vendita 17/12/2025 ore 16:15. Giudice Dott. Assunta Gioia. Professionista delegato alla vendita Not. Anna Calvelli - Email "associazionenotarileproenc@gmail.com"; Tel. 0984408479. Custode Giudiziario Not. Anna Calvelli - Email "associazionenotarileproenc@gmail.com"; Tel. 0984408479. Rif. Tribunale di Cosenza - Esecuzione immobiliare post legge 80 n. 47/2020

Superficie mq
Vani
Bagni
Piano 0

Tipologia di vendita Giudiziaria
Modalità di vendita Sincrona mista
Termine presentazione offerte 01/01/1900 ore 00:00
Data e ora inizio gara 17/12/2025 ore 16:15
Codice ID astegiudiziarie.it 4317339
0
€ 156.023

Ti interessa questa vendita?

north_east

Clicca qui per essere indirizzato alla scheda sul sito di provenienza

Bene di astegiudiziarie.it