highlight_off
Riferimento annuncio 314367 info

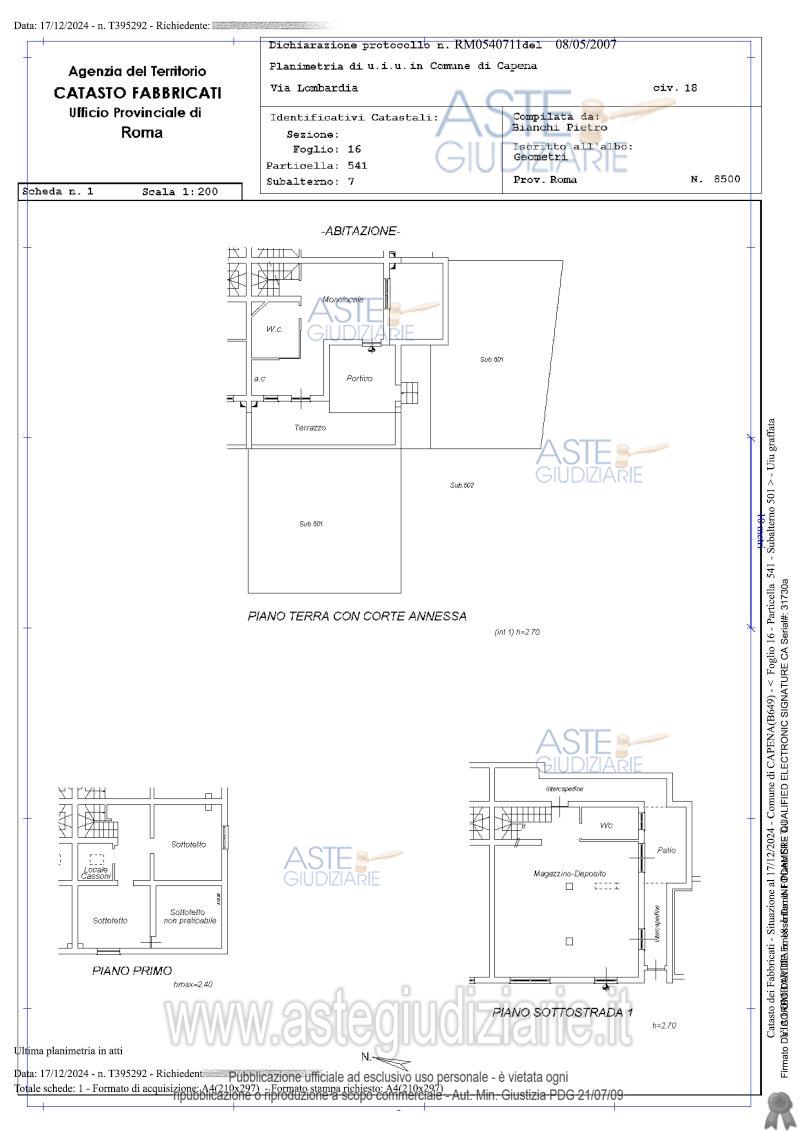
Villino Via Lombardia, 18, 00060 Selvotta RM, Italia, 00060 Capena (RM)

219,81
0
€ 199.000
Vendita all'asta Senza incanto, con gara telematica asincrona - LOTTO UNICO: Quota pari a 1/1 del diritto di proprietà su unità immobiliari site in Comune di Capena (Roma) Via Lombardia 18/A:• abitazione indipendente con corte annessa, garage e posto auto scoperto. Prezzo base € 199.000,00 (offerta minima € 149.250,00). Data inizio operazioni di vendita: 10/12/2025 ore 14:00. Giudice Francesco Lupia. Professionista delegato alla vendita Avv. Claudia Ciavarella - Email "ciavarella.c67@gmail.com"; Cell. 3407603413; Tel. 0774341881. Custode Giudiziario Ivg Di Roma Srl - Email "pvp@visiteivgroma.it"; Tel. 0689569801. Rif. Tribunale di Tivoli - Espropriazione immobiliare (cartabia) n. 160/2024

Superficie 219,81 mq
Vani
Bagni
Piano 0

Tipologia di vendita Giudiziaria
Modalità di vendita Asincrona telematica
Termine presentazione offerte 09/12/2025 ore 23:59
Data e ora inizio gara 10/12/2025 ore 14:00
Codice ID astegiudiziarie.it 4335566
219,81
0
€ 199.000

Ti interessa questa vendita?

north_east

Clicca qui per essere indirizzato alla scheda sul sito di provenienza

Bene di astegiudiziarie.it