highlight_off
Riferimento annuncio 321106 info

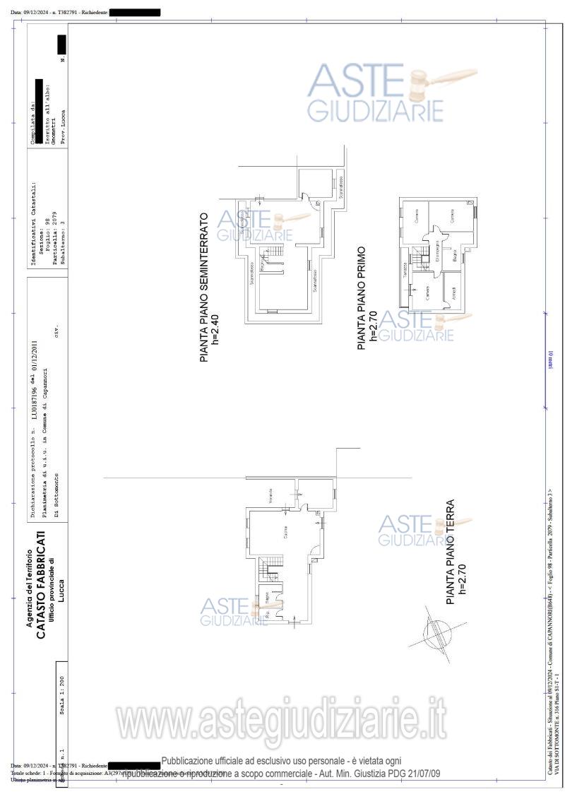
Villino Via Sottomonte, 316/D, 55012 Capannori (LU)

11,00
348,87
2
0
€ 270.400
Vendita all'asta Senza incanto, con gara telematica sincrona mista - LOTTO UNICO: Civile abitazione in villetta bifamiliare in Comune di Capannori (LU), Via di Sottomonte n. 316/D, della superficie commerciale di 348,87 mq, per la quota di 1/1 di piena proprietà, corredata da un’unità a garage e terreno di pertinenza. Prezzo base € 270.400,00 (offerta minima € 202.800,00). Data vendita 30/01/2026 ore 10:00. Professionista delegato alla vendita Dott. Giulia Tommasi - Email "g.tommasi@associatibss.it"; Tel. 0584361559. Custode Giudiziario Ivg Lucca - Email "custodieivg@gmail.com"; Tel. 0583418555. Rif. Tribunale di Lucca - Espropriazione immobiliare (cartabia) n. 82/2024

Superficie 348,87 mq
Vani 11,00
Bagni 2
Piano 0

Tipologia di vendita Giudiziaria
Modalità di vendita Sincrona mista
Termine presentazione offerte 29/01/2026 ore 12:00
Data e ora inizio gara 30/01/2026 ore 10:00
Codice ID astegiudiziarie.it 4340949
11,00
348,87
2
0
€ 270.400

Ti interessa questa vendita?

north_east

Clicca qui per essere indirizzato alla scheda sul sito di provenienza

Bene di astegiudiziarie.it