highlight_off
Riferimento annuncio 320036 info

Villino Via Miguel Hernandez 18, 00063 Campagnano di Roma (RM)

4,00
123,94
0
€ 125.414
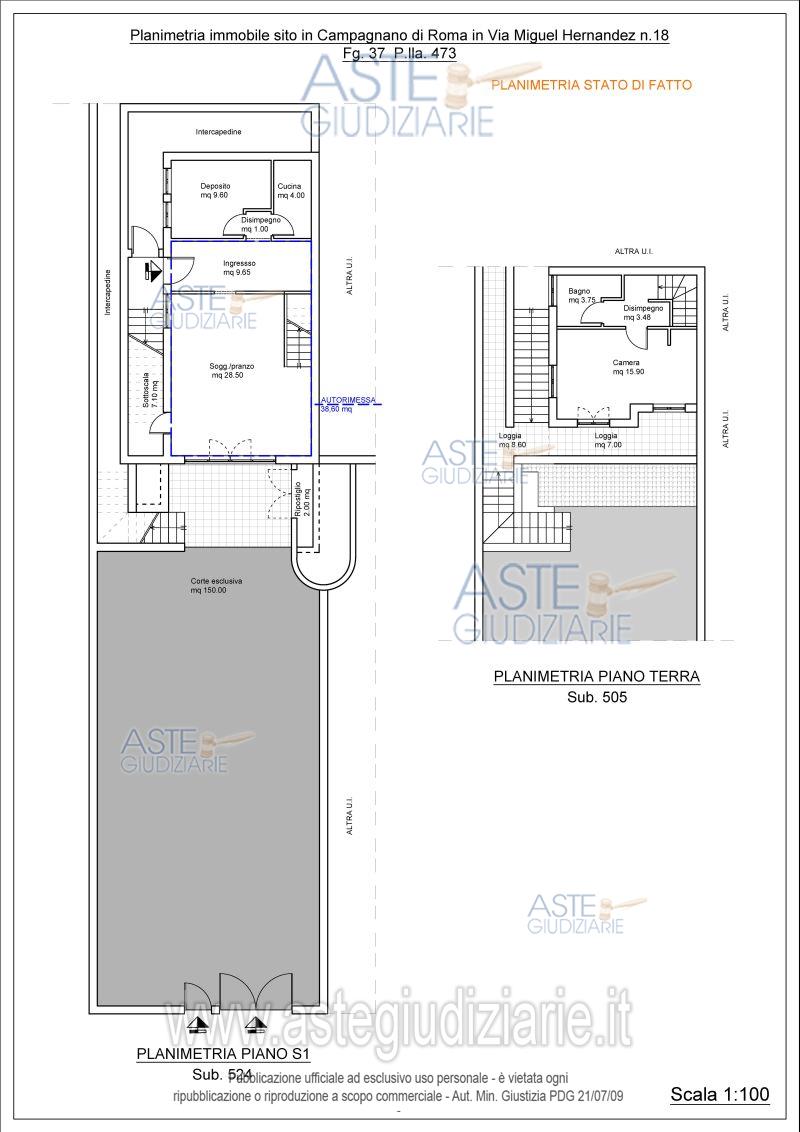
Vendita all'asta Senza incanto, con gara telematica asincrona - LOTTO UNICO: Appartamento in villino sito in Campagnano di Roma, via Miguel Hernandez,18 località "Monte Cuculo", int. 1/C, piano S1-T. Esso si sviluppa su 2 piani, seminterrato e terra, collegati tramite scala interna; è dotato di giardino esclusivo. Pertinenza dell’appartamento è un’autorimessa ad esso collegata. L’immobile è sito nel complesso "Valle dei Girasoli", dotato di parcheggi, marciapiedi ed aree verdi. Superfici: appartamento: 81,48mq; box: 42,46mq.Il tutto come meglio precisato nell'elaborato peritale. Prezzo base € 125.414,00 (offerta minima € 94.060,50). Data inizio operazioni di vendita: 29/01/2026 ore 14:00. Professionista delegato alla vendita Dott. Rosa Sechi - Email "rosa.sechi@amalex.it"; Tel. 063725644. Custode Giudiziario Ivg Di Roma S.R.L. - Email "pvp@visiteivgroma.it"; Tel. 0689569801. Rif. Tribunale di Tivoli - Espropriazione immobiliare (cartabia) n. 447/2023

Superficie 123,94 mq
Vani 4,00
Bagni
Piano 0

Tipologia di vendita Giudiziaria
Modalità di vendita Asincrona telematica
Termine presentazione offerte 01/01/1900 ore 00:00
Data e ora inizio gara 29/01/2026 ore 14:00
Codice ID astegiudiziarie.it 4339971
4,00
123,94
0
€ 125.414

Ti interessa questa vendita?

north_east

Clicca qui per essere indirizzato alla scheda sul sito di provenienza

Bene di astegiudiziarie.it