highlight_off
Riferimento annuncio 288304 info

Villino Via Franchini, 12, 41030 Bomporto MO, Italia, 41030 Bomporto (MO)

200,64
0
€ 130.781
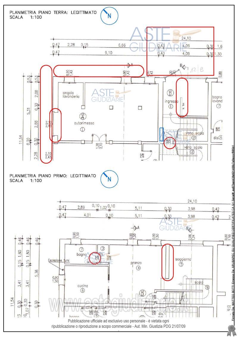
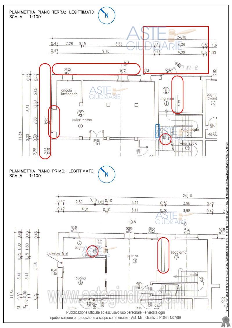
Vendita all'asta Senza incanto, con gara telematica asincrona - LOTTO UNICO: Piena e intera proprietà di villa ubicata nel Comune di Bomporto, via Franchini n. 12/B, composta da: garage, lavanderie, ingresso e vano scale al piano terra, zona giorno, cucina, bagno e vano scale al piano primo, una camera da letto matrimoniale, una camera da letto singola, un ripostiglio, un disimpegno ed un bagno al piano secondo. Prezzo base € 130.781,25 (offerta minima € 98.085,94). Data inizio operazioni di vendita: 29/01/2026 ore 10:30. Professionista delegato alla vendita Avv. Giulia Gasparini - Email "giulia.gasparini@lombardostudiolegale.com"; Tel. 0594730179. Custode Giudiziario Alex Manelli - Email "visiteimmobili@ivgmodena.it"; Tel. 059847301. Rif. Tribunale di Modena - Espropriazione immobiliare (cartabia) n. 169/2023

Superficie 200,64 mq
Vani
Bagni
Piano 0

Tipologia di vendita Giudiziaria
Modalità di vendita Asincrona telematica
Termine presentazione offerte 28/01/2026 ore 23:59
Data e ora inizio gara 29/01/2026 ore 10:30
Codice ID astegiudiziarie.it 4314868
200,64
0
€ 130.781

Ti interessa questa vendita?

north_east

Clicca qui per essere indirizzato alla scheda sul sito di provenienza

Bene di astegiudiziarie.it