highlight_off
Riferimento annuncio 114824 info

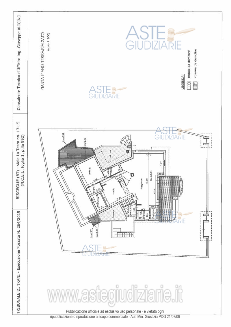
Villino Viale La Testa 13-15, 76011 Bisceglie (BT)

0
€ 554.400
Vendita all'asta Senza incanto, con gara telematica sincrona - LOTTO UNICO: Villa singola indipendente in Bisceglie, di mq 574,54, composta da area scoperta, piano seminterrato, piano terra/rialzato e primo piano oltre lastrico solare. Prezzo base € 554.400,00 (offerta minima € 415.800,00). Data vendita 02/02/2026 ore 09:30. Giudice Diletta Calò. Professionista delegato alla vendita Avv. Vittorio Pondrelli - Email "sba@toffolettodeluca.it". Custode Giudiziario Avv. Vittorio Pondrelli - Email "sba@toffolettodeluca.it". Rif. Tribunale di Trani - Esecuzione immobiliare post legge 80 n. 264/2019

Superficie mq
Vani
Bagni
Piano 0

Tipologia di vendita Giudiziaria
Modalità di vendita Sincrona telematica
Termine presentazione offerte 30/01/2026 ore 12:00
Data e ora inizio gara 02/02/2026 ore 09:30
Codice ID astegiudiziarie.it 4200554
0
€ 554.400

Ti interessa questa vendita?

north_east

Clicca qui per essere indirizzato alla scheda sul sito di provenienza

Bene di astegiudiziarie.it