highlight_off
Riferimento annuncio 299603 info

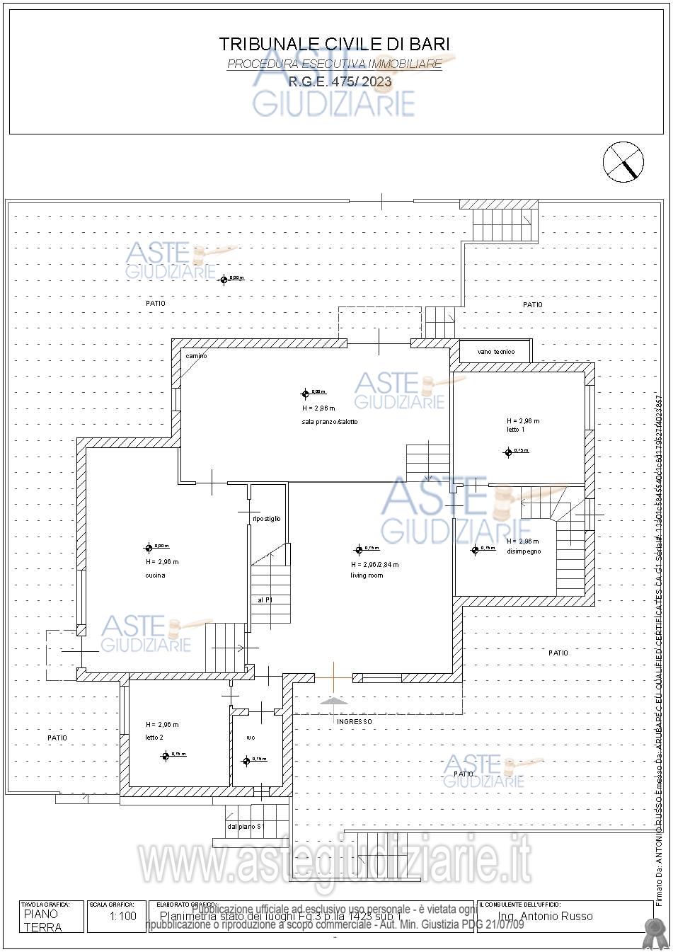
Villino Via Francesco Speranza, 18, 70127 Bari BA, Italia, 70100 Bari (BA)

0
€ 414.000
Vendita all'asta Senza incanto, con gara telematica asincrona - LOTTO UNICO: Piena proprietà di un villino di tipo indipendente con annessi due depositi e area scoperta di pertinenza. Il villino si sviluppa su tre livelli. Il piano seminterrato è composto da due vani indipendenti; il piano rialzato è composto da un salone, due camere da letto, un bagno e un disimpegno, cucina con piccolo ripostiglio/lavanderia sottoscala, una sala da pranzo; il piano primo è composto da tre camere da letto, due bagni, un ripostiglio; completano il piano primo due terrazze. Prezzo base € 414.000,00 (offerta minima € 310.500,00). Data inizio operazioni di vendita: 10/11/2025 ore 09:30. Giudice Dott. Antonio Ruffino. Professionista delegato alla vendita Dott. Manuela Monica Danila Massari - Email "studio_massari@libero.it". Custode Giudiziario Dott. Manuela Monica Danila Massari - Email "studio_massari@libero.it". Rif. Tribunale di Bari - Espropriazione immobiliare (cartabia) n. 475/2023

Superficie mq
Vani
Bagni
Piano 0

Tipologia di vendita Giudiziaria
Modalità di vendita Asincrona telematica
Termine presentazione offerte 01/01/1900 ore 00:00
Data e ora inizio gara 10/11/2025 ore 09:30
Codice ID astegiudiziarie.it 4323300
0
€ 414.000

Ti interessa questa vendita?

north_east

Clicca qui per essere indirizzato alla scheda sul sito di provenienza

Bene di astegiudiziarie.it