Riferimento annuncio 300430
        
    
    Villino Via Voghera, 38, 00040 Ardea RM, Italia, 00040 Ardea (RM)
                
                5,00
            
            
                
                150,00
            
            
                
                3
            
            
                
                0
            
        
€ 182.250    
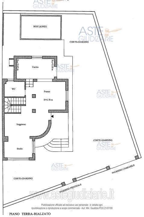
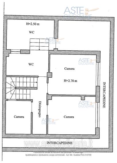
                Vendita all'asta Senza incanto, con gara telematica asincrona - LOTTO UNICO:  Villetta bifamiliare disposta su tre livelli (seminterrato, terra e primo) con relativa corte-giardino di pertinenza ed accessori. Prezzo base € 182.250,00 (offerta minima € 136.687,50). Data inizio operazioni di vendita: 25/11/2025 ore 10:30. Giudice Raffaella Calvanese. Professionista delegato alla vendita Avv. Federico Fuscà. Custode Giudiziario Avv. Federico Fuscà - Email "studiolegalefusca@yahoo.it"; Cell. 3392029421.  Rif. Tribunale di Velletri - Espropriazione immobiliare (cartabia) n. 35/2024
            
   
| Superficie | 150,00 mq | 
|---|---|
| Vani | 5,00 | 
| Bagni | 3 | 
| Piano | 0 | 
| Tipologia di vendita | Giudiziaria | 
|---|---|
| Modalità di vendita | Asincrona telematica | 
| Termine presentazione offerte | 01/01/1900 ore 00:00 | 
| Data e ora inizio gara | 25/11/2025 ore 10:30 |